De jachthaven van Scheveningen is een dynamische locatie om te zijn en te wonen. Op deze jaloersmakende plek bieden wij aan een licht en opvallend breed bovenhuis. Verdeeld over drie woonlagen met een grote woonkamer, royale eetkeuken, drie/vier slaapvertrekken en twee terrassen. Vanuit de voorkamers zicht uit over het water en de masten, een levendig en steeds wisselend uitzicht dat niet verveelt.
De haven is een energieke omgeving. Rondom zijn gezellige cafés, visrestaurants en terrassen waar altijd iets valt te beleven. Tegelijkertijd biedt de woning zelf een rustige plek om je terug te trekken, net buiten de drukte maar er nog altijd dichtbij. Aan de achterzijde bevinden zich twee beschut liggende terrassen met volop zon. Een fijne plek voor een rustig ontbijt, een goed boek of een zomeravond met vrienden.
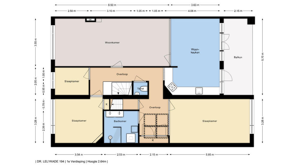
INDELING van deze praktisch ingedeelde bovenwoning:
BEGANE GROND Voordeur, halletje met meterkast, binnentrap naar woonlaag.
EERSTE VERDIEPING Ruime L-vormige overloop/hal met een wc-ruimte met fontein en vaste kasten. Royale zitkamer met zicht over de jachthaven en de Tweede Haven, grenzend aan de grote eetkeuken met een L-vormige keukenopstelling is. Deze ruimte heeft openslaande deuren, alsmede een keukendeur naar het terras. Het terras ligt op het zuidoosten en vangt en ochtend- en middagzon.
Aan de straatzijde: twee slaapkamers. Aan de achterzijde een zeer ruime slaapkamer 3. De tussenliggende badkamer is ingericht met een inloopdouche, een dubbele wastafel met meubel en de wasmachineaansluiting.
KAPVERDIEPING De zolderverdieping heeft een ruime overloop en een (slaap)kamer met dakkapel met openslaande deuren naar het dakterras.
BIJZONDERHEDEN:
- gebouwd op eeuwigdurend uitgegeven erfpachtgrond van de Gemeente ’s-Gravenhage;
- de erfpactcanon en beheerkosten zijn afgekocht;
- Gemeentelijk monument;
- 143 m2 woonoppervlakte en 92 (!) m2 buitenruimte;
- 18/41ste aandeel in VvE;
- indicatie maandelijkse VvE bijdrage: circa € 200,00
- ouderdom-, materialen-, funderings- en niet-bewonersclausules van toepassing;
- oplevering kan snel.
Woningaanbod
Dr. Lelykade 194 • verkocht • € 575000,-
Omschrijving
Informatie
Ligging
aan water, vrij uitzicht, aan vaarwater, zeezicht
Onderhoud buiten
goed
Oppervlakte
143 m2
Onderhoud binnen
goed
Inhoud
473 m3
Bijzonderheden
monument, gedeeltelijk gestoffeerd
Perceeloppervlak
0 m2
Isolatie
Bouwjaar
1938
Dak
pannen, bitumineuze dakbedekking
Ik heb interesse!
Wilt u een afspraak maken voor een bezichtiging, of wilt u meer informatie over deze aanbod? Neem dan direct contact met ons op! Vul het formulier in of neem telefonisch contact met ons op, zodat wij u direct kunnen helpen (* = verplicht!).




































