Emantsstraat 5 ligt in woonwijk Benoordenhout. Het is een buitengewoon verzorgde en stijlvol ingerichte benedenwoning (1916) met een prachtige, verrassende woonkamer (met zes raampartijen), een mooie (woon-)keuken, twee slaapvertrekken, een werkkamer en een balkon grenzend aan de badkamer op de tweede verdieping. De circa 13 meter brede achtertuin vangt de ochtend- en middagzon. Wordt u de eigenaar van dit fijne huis?
LOCATIE De Emantsstraat is een rustige woonstraat in Benoordenhout. Het is een zijstraat van Bachmanstraat en de Oostduinlaan en loopt parallel aan de Wassenaarseweg.
Benoordenhout is een fijne en rustige buurt. Op loopafstand van basis-, middelbare en internationale scholen, speeltuin Arendsdorp en lokale winkels. Niet ver van diverse sportfaciliteiten (voetbal, tennis, hockey, golf), winkels (Van Hoytemastraat, Weissenbruchstraat, Bankastraat), parken (Sint Hubertuspark, Landgoed Clingendael, Oostduin Park). Op fietsafstand van de NS-stations, de binnenstad, het strand en de Noordzee. Op korte afstand van openbaar vervoer (tramlijn 9, buslijn 20, 29) en de uitvalswegen.
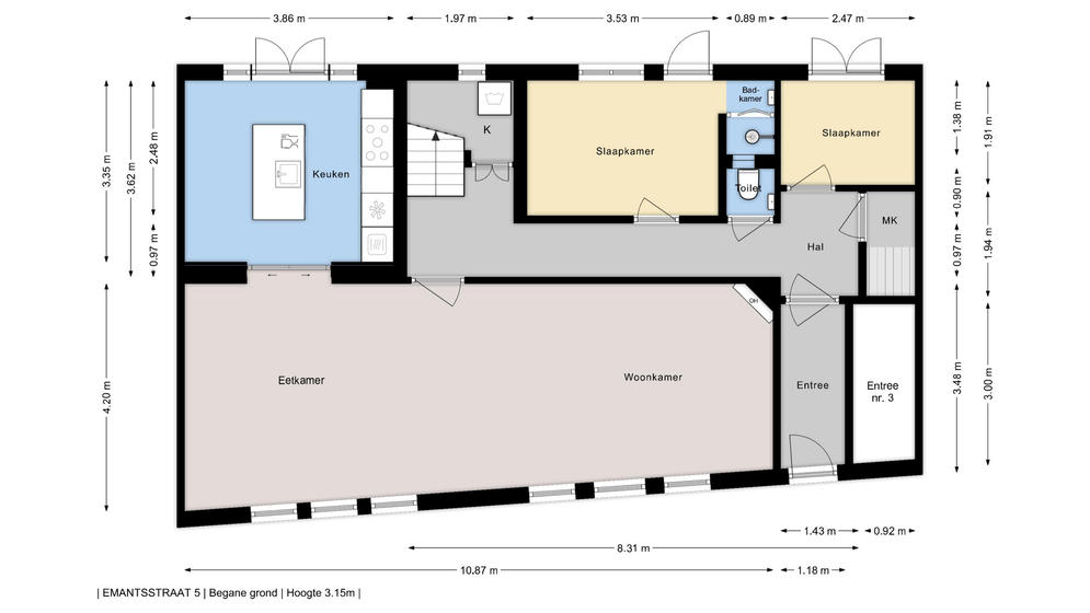
INDELING BEGANE GROND Voordeur, vestibule, vestibuledeur, L-vormige gang met een trapkast met de elektrische installatie, de gasten-wc met fontein, alsmede een berg-/werkkast met de wasmachineaansluiting.
De zit-/eetkamer ligt aan straatzijde, over de breedte (circa 10.85m) van het huis. Het is een bijzondere ruimte met zes raampartijen, een plafondhoogte van circa 3.15m en een fraaie houten vloerdecoratie.
De eetkeuken heeft schuifdeuren naar de woonkamer en openslaande deuren naar de tuin. De keukenunit met barfunctie en de keukenwand hebben een praktische indeling met veel kastruimtes en (bestek-)lades en zijn geoutilleerd met (inbouw-)apparatuur: Siemens oven, Siemens magnetron, Boretti-pits kookplaat, ventilatiekap, koel-/vrieskast, vaatwasser en Quooker.
De (gasten-)slaapkamer annex badkamer heeft een deur naar de tuin. De gastenbadkamer is voorzien van een wastafel en douche.
De als werkkamer ingerichte ruimte heeft eveneens toegang tot de tuin.
INDELING EERSTE VERDIEPING Overloop en de royale, lichte hoofdslaapkamer.
INDELING TWEEDE VERDIEPING Overloop met dakraam. Een eigentijds en praktisch ingerichte badkamer met een inloopdouche, wc, ligbad en een meubel met wastafel.
TUIN De fraai aangelegde tuin is woning-breed, zuidoost georiënteerd en zorgt voor aangename tuinmomenten.
BINNEN-ONDERHOUD De woning werd in 2013 compleet verbouwd en gemoderniseerd en is immer goed onderhouden.
BUITENONDERHOUD De gevels, de dakbedekking en het schilderwerk zijn in goede/zeer goede conditie.
VVE Het appartement maakt deel uit van een kleine VVE (twee leden) met een actief onderhoudsbeleid op basis van een MJOP. De maandelijkse bijdrage is EUR 250,00.
VERDER Bouwjaar 1916, eigen grond, Rijks Beschermd Stadsgezicht, in de NVM-koopakte worden gezien het bouwjaar (toekomstige)milieu-, asbest-, fundering- en ouderdomsclausules opgenomen, oplevering in overleg.
AANKOOPMAKELAAR Interesse in dit huis? Schakel dan uw eigen NVM-aankoopmakelaar in. Uw NVM-aankoopmakelaar komt op voor uw belang en bespaart u tijd, geld en zorgen. Adressen van collega NVM-aankoopmakelaars in Haaglanden vindt u op Funda.
Woningaanbod
Emantsstraat 5 • beschikbaar • € 785000,-
Omschrijving
Informatie
Ligging
aan rustige weg, in woonwijk
Onderhoud buiten
goed
Oppervlakte
127 m2
Onderhoud binnen
goed
Inhoud
541 m3
Bijzonderheden
gedeeltelijk gestoffeerd, beschermd stads of dorpsgezicht
Perceeloppervlak
0 m2
Isolatie
dubbel glas
Bouwjaar
1916
Dak
pannen, bitumineuze dakbedekking
Ik heb interesse!
Wilt u een afspraak maken voor een bezichtiging, of wilt u meer informatie over deze aanbod? Neem dan direct contact met ons op! Vul het formulier in of neem telefonisch contact met ons op, zodat wij u direct kunnen helpen (* = verplicht!).





















































