Een ruim en bijzonder licht appartement (ca. 85 m2) op de vijfde etage van een goed onderhouden wooncomplex (1976), met drie slaapkamers, een groot balkon (ca. 12 m2) en een berging in de onderbouw. 
De flat staat garant voor een mooie lichtval, privacy en een vrij uitzicht. Parkeren? Een privé parkeerplaats wordt separaat te koop aangeboden. 
LOCATIE De woning ligt in de wijk Kraayenstein, een rustige en groene woonomgeving aan de rand van Den Haag. In de directe omgeving: winkelcentrum Kraayenstein, diverse scholen,  The International School of The Hague, sportfaciliteiten en openbaar vervoer (tramlijn 2). Op fietsafstand van de duinen en het Noordzeestrand.
 
ENTREE COMPLEX  Afgesloten en verzorgde hoofdentree met bellen- en brievenbussentableau met camerabewaking, huismeester, trappenhuis of liftinstallatie naar vijfde verdieping, flatentree via portiek. Naast de voordeur nog een beknopte berging.
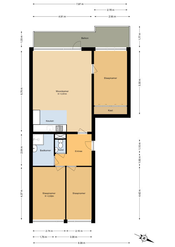
INDELING WONING 
Hal met de wc-ruimte voorzien van een fontein. De woonkamer met open keuken heeft een deur naar het balkon en de voorzijkamer/slaapkamer met vaste kast. Het woning-brede balkon is ruim, ligt op het zuidwesten en vangt de middag- en avondzon. 
De L-vormige keukenopstelling heeft boven- en onderkasten en een (inbouw-)vaatwasser, oven, filterkap en gaskookplaat.
Aan de galerij-zijde zijn slaapkamer 2 en 3. 
De tussenliggende badkamer is ingericht met douche, wastafel en de opstelplaats voor een wasmachine.
BERGING In de onderbouw is de berging (ideaal voor opslag en het stallen van fietsen).
PARKEERPLAATS De parkeerplaats is op het buitenterrein. Vraagprijs: EUR 15.000,- kosten koper.
VVE De appartementsrechten zijn onderdeel van een VvE met een actief onderhoudsbeleid. De maandelijkse VvE-bijdrage voor flat: EUR  229,39  (voor onder meer gemeenschappelijk onderhoud, liftinstallatie, verzekeringen, schoonmaak, opbouw reservefondsen), voorschot stookkosten EUR 133,- per maand.
 
BIJZONDERHEDEN: Bouwjaar 1976; de woning is gebouwd op erfpacht grond van de gemeente ’s-Gravenhage (de  erfpachtcanon is eeuwigdurend afgekocht); gelet op het bouwjaar worden in de NVM-koopovereenkomst ouderdoms-, milieu- en asbestclausules opgenomen, eigendomsoverdracht: per direct. 
 
Interesse in dit huis? Schakel direct uw eigen NVM-aankoopmakelaar in. Uw NVM-aankoopmakelaar komt op voor uw belang en bespaart u tijd, geld en zorgen. Adressen van collega NVM-aankoopmakelaars in Haaglanden vindt u op Funda.
            
        Woningaanbod
Forellendaal 297 • beschikbaar • € 315000,-
Omschrijving
Informatie
Ligging
                        Onderhoud buiten
                        
                        goed
Oppervlakte
                        85 m2
Onderhoud binnen
                        
                        redelijk tot goed
Inhoud
                        282 m3
Bijzonderheden
                        
                        Perceeloppervlak
                        
                        0 m2
Isolatie
                        dubbel glas
Bouwjaar
                        1976
Dak
                        bitumineuze dakbedekking
Ik heb interesse!
Wilt u een afspraak maken voor een bezichtiging, of wilt u meer informatie over deze aanbod? Neem dan direct contact met ons op! Vul het formulier in of neem telefonisch contact met ons op, zodat wij u direct kunnen helpen (* = verplicht!).
































