De Galileistraat is een fijne, geliefde woonstraat in het Regentessekwartier. Huisnummer 121 is een zeer verzorgd en smaakvol ingerichte benedenwoning (circa 112m2 woonoppervlakte) met een mooie woonkamer met open keuken en twee (oorspronkelijk drie) ruime slaapvertrekken in de twee-laags uitbouw. De 11-meter diepe L-vormige achtertuin ligt op het noordwesten en vangt de middag- en avondzon.
LOCATIE: tussen de Beeklaan en de Regentesselaan, op loopafstand van openbaar vervoer (lijnen 21, 12, 34, 11, 3/RandstadRail), winkelaanbod Weimarstraat/Reinkenstraat en op fietsafstand van de binnenstad en het Noordzeestrand. En nagenoeg tegenover de verrassende stadstuin “Emma’s Hof”. Deze duurzaam ingerichte tuin biedt een unieke rustplek voor volwassenen alsmede een natuurlijke speelplek voor jonge kinderen.
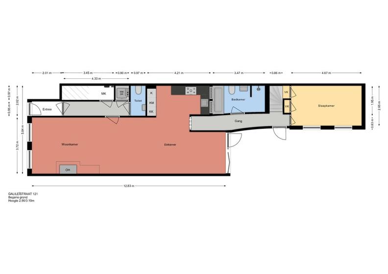
INDELING:
BEGANE GROND Klassieke voordeur, vestibule, tochtdeur, gang trapkast met elektrische installatie (10 voorzieningen met aardlekschakelaars), gangkast met opstelplaats voor wasmachine en –droger, modern ingerichte wc-ruimte met goede beenruimte en een fontein. De vestibule en gang hebben een fraaie granitovloer.
Royale zit-/eetkamer met een parketvloer, een open haard en openslaande deuren naar de achtertuin. Plafondhoogte: 2.90, gedeeltelijk 3.10m. Vanuit de voorkamer heeft u zicht op prachtige herenhuizen met voortuinen en vanuit de achterkamer kijkt u op de verzorgde achtertuin. De keukenruimte is in open verbinding met de woonkamer en is sfeervol ingericht met een keukenopstelling voorzien van (inbouw-)kookplaat, vaatwasser, Quooker, oven, magnetron, koel-/vriescombinatie.
UITBOUW BEGANE GROND Gang (met tuindeur) naar slaapkamer met twee vaste kasten. Tussenliggende, eigentijds uitgevoerde badkamer met ligbad, inloopdouche, wastafel, radiator, en wc.
UITBOUW EERSTE VERDIEPING: Overloop, ruime slaap-/werkkamer met wastafel. Deze slaapkamer is eenvoudig weer op te delen in twee slaapkamers.
TUIN: L-vormige achtertuin langs en achter de uitbouwkamers met middag-, avondzon. Een fijne plek om je even terug te trekken. Er staat een houten overkapping voor open haardhoutopslag en achter de uitbouw is een praktisch houten tuinhuisje.
BUITENONDERHOUD: Redelijk. BINNENONDERHOUD: Goed. Een onafhankelijk bouwkundig rapport is beschikbaar.
ISOLATIE: De ramen in de woonkamer hebben dubbele beglazing, de begane grondvloer in de woonkamer voorzien van Tonzon thermoskussens en in het achterhuis geďsoleerd met steenwol.
VVE: Twee/vijfde aandeel in VvE met een ad hoc onderhoudsbeleid. De maandelijkse VvE-bijdrage: EUR 30,00.
VERDER: Bouwjaar 1902; eigen grond; gemeentelijk Beschermd Stadsgezicht; in de NVM-koopakte worden milieu-, asbest-, -funderings- en ouderdomsclausules opgenomen; oplevering in overleg.
AANKOOPMAKELAAR Interesse in dit huis? Schakel dan uw eigen NVM-aankoopmakelaar in.
Uw NVM-aankoopmakelaar komt op voor uw belang en bespaart u tijd, geld en zorgen.
Adressen van collega NVM-aankoopmakelaars in Haaglanden vindt u op Funda.
COVID-19: In kader van de preventie van het Covid19 virus, hanteren wij aangepaste maatregelen. Voor iedere bezichtiging wordt 15 minuten uitgetrokken. Per bezichtiging laten wij maximaal twee personen van een huishouden toe tot de woning, eventueel vergezeld van een aankoopmakelaar (dus in dat geval maximaal drie personen).
Woningaanbod
Galileistraat 121 • verkocht • € 540000,-
Omschrijving
Informatie
Ligging
aan rustige weg, in woonwijk
Onderhoud buiten
redelijk
Oppervlakte
112 m2
Onderhoud binnen
goed
Inhoud
464 m3
Bijzonderheden
gedeeltelijk gestoffeerd, beschermd stads of dorpsgezicht
Perceeloppervlak
0 m2
Isolatie
vloerisolatie, gedeeltelijk dubbel glas
Bouwjaar
1902
Dak
pannen, bitumineuze dakbedekking
Ik heb interesse!
Wilt u een afspraak maken voor een bezichtiging, of wilt u meer informatie over deze aanbod? Neem dan direct contact met ons op! Vul het formulier in of neem telefonisch contact met ons op, zodat wij u direct kunnen helpen (* = verplicht!).






































