Een charmante dubbele bovenwoning met een semi-open keuken, een balkon/terras met ochtendzon, twee slaapkamers en een moderne badkamer.
LOCATIE De Gedempte Sloot (Kortenbos) ligt heel centraal, tussen het historische centrum en het Energiekwartier. De lijst met voorzieningen in de directe omgeving is lang. Wij beperken ons tot enkele hoogtepunten: Dagelijkse Groenmarkt, Oude Molstraat, Het Paard, de terrasboten aan de Veenkade, de Paleistuin, maar ook de chique winkelstraten Noordeinde en Hoogstraat, het Lange Voorhout; een variatie aan musea, theaters en bioscopen; openbaar vervoer op zeer korte loopafstand. De fietsafstand tot NS stations Den Haag CS en HS: circa 7-10 minuten.
Indeling:
Voordeur op straatniveau, halletje met meterkast, binnentrap (met inbouwverlichting) naar woonlaag.
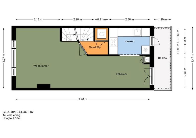
EERSTE VERDIEPING Overloop met vaste kast met opstelplaats wasmachine. Bijzonder lichte zit-/eetkamer met een open trap, een kast voor de Cv-ketel en openslaande deuren naar het terras/balkon. Het oorspronkelijke balkon is onlangs verdiept tot een goed formaat balkon/terras. Het ligt op het noordoosten, vangt de ochtend- en begin van de middagzon en biedt zicht op de Grote Kerk en de hoge gebouwen in de buurt van Den Haag CS. Een heerlijke plek grenzend aan de woonkamer. De keukenruimte is in open verbinding met de woonkamer. De keukenopstelling is voorzien van boven- en onderkasten met diverse (inbouw-)apparatuur.
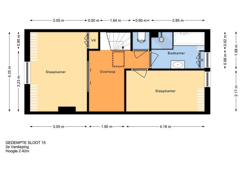
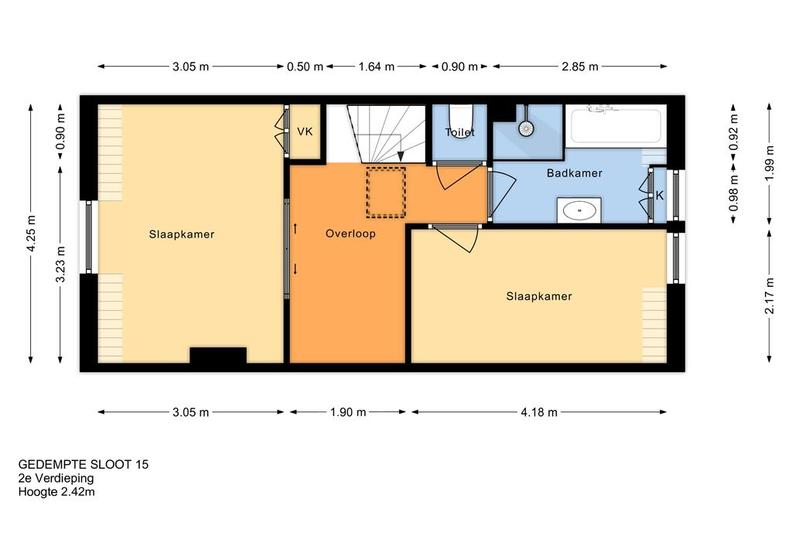
TWEEDE VERDIEPING Royale overloop met de wc-ruimte. De bijzonder sfeervolle slaapkamer aan straatzijde heeft een dakkapel en prachtige glas-in-looddeuren. Aan de achterzijde slaapkamer 2 en de badkamer. De badkamer is eigentijds ingericht met een ligbad, douche en wastafelmeubel.
VVE 8/76-ste aandeel in de VvE met een actief onderhoudsbeleid. De maandelijkse VvE-bijdrage: EUR 97,30.
EN VERDER: Bouwjaar 1928; in de NVM-koopakte worden ouderdoms-, funderings- en milieuclausules opgenomen; oplevering in overleg (begin 2022).
AANKOOPMAKELAAR Interesse in dit huis? Schakel dan uw eigen NVM-aankoopmakelaar in. Uw NVM-aankoopmakelaar komt op voor uw belang en bespaart u tijd, geld en zorgen. Adressen van collega NVM-aankoopmakelaars in Haaglanden vindt u op Funda.
Woningaanbod
Gedempte Sloot 15 • verkocht • € 300000,-
Omschrijving
Informatie
Ligging
aan rustige weg, in woonwijk
Onderhoud buiten
redelijk tot goed
Oppervlakte
80 m2
Onderhoud binnen
redelijk
Inhoud
272 m3
Bijzonderheden
Perceeloppervlak
0 m2
Isolatie
Bouwjaar
1928
Dak
leisteen, bitumineuze dakbedekking
Ik heb interesse!
Wilt u een afspraak maken voor een bezichtiging, of wilt u meer informatie over deze aanbod? Neem dan direct contact met ons op! Vul het formulier in of neem telefonisch contact met ons op, zodat wij u direct kunnen helpen (* = verplicht!).


























