Optimaal woongenot in een ruim en buitengewoon licht bovenhuis nabij Scheveningen Bad en het Haagse/Scheveningse strand en duinen. Wij bieden aan een royale bovenwoning (circa 146 m2) met prachtige lichtinval en zonnige buitenruimtes. Het gaat om een karaktervol, goed onderhouden bovenhuis verdeeld over twee verdiepingen en met maar liefst drie balkons. For English, see Funda English.
SFEERDETAILS Veel elementen uit de bouwperiode (1917) zijn bewaard gebleven. Zoals suiteseparatie, natuurstenen schoorsteenmantels, fraaie plafonds, paneeldeuren.
ISOLATIE De kozijnen en balkondeuren werden in 2022 voorzien van dubbele, dan wel isolerende beglazing, gevels zijn geďsoleerd, op het dak liggen 6 zonnepanelen.
Indeling van het door ons aangeboden bovenhuis.
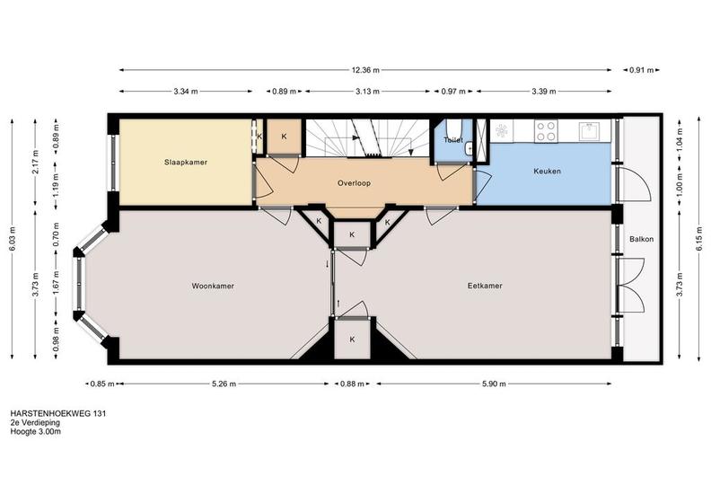
ENTREE via natuurstenen trap naar voordeur, entreehal met meterkast(en), binnentrap naar woonlaag.
TWEEDE VERDIEPING Overloop met vaste kast en wc-ruimte met fontein.
Twee buitengewoon sfeervolle kamers en suite met een kastenseparatie en schuifdeuren: de zitkamer heeft een mooie erker en vangt de middag- en avondzon, de eetkamer heeft openslaande deuren naar woning-brede balkon. Aan de voorzijde een studeer-/werkkamer met vaste kast. De keuken ligt aan de achterzijde, is ingericht met een eigentijdse opstelling met diverse inbouwapparaten en een deur naar het balkon.
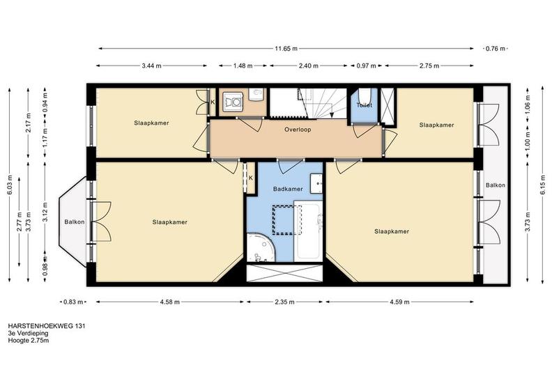
DERDE VERDIEPING Overloop. Grote vaste kast met opstelplaats cv-combiketel en wasmachine en -droger, alsmede een wc. Aan de voorzijde een charmante SLAAPKAMER 1 met openslaande deuren naar het voorbalkon en een zijkamer (SLAAPKAMER 2) met vaste kast. Aan de achterzijde SLAAPKAMER 3 en 4. Beide kamers hebben openslaande deuren naar het pand-brede balkon.
De badkamer ligt tussen de twee grote slaapkamers en is ingericht met een ligbad, douchehoek en vaste wastafel. Via een dakraam toegang tot het met 6 zonnepanelen belegde dak.
BALKONS: De balkons (ZZO) aan de achterzijde vangen de ochtend- en middagzon. Het balkon aan de straatzijde heeft
avondzon.
VVE Een/tweede aandeel in de VvE met een actief onderhoudsbeleid. Zo werd in 2019 de dakbedekking vervangen en is zeer recent het buitenschilderwerk professioneel uitgevoerd. De maandelijkse VvE-bijdrage: EUR 150,00.
VERDER Gebouwd op erfpachtgrond (eeuwigdurende erfpachtgrond, canon EUR 356,68 per jaar); Rijks Beschermd Stadsgezicht, afmetingen indicatief, in de NVM koopakte worden ouderdoms-, milieu- en funderingsclausules opgenomen, oplevering in overleg.
AANKOOPMAKELAAR Interesse in dit huis? Schakel direct uw eigen NVM-aankoopmakelaar in.
Uw NVM-aankoopmakelaar komt op voor uw belang en bespaart u tijd, geld en zorgen. Adressen van collega NVM-aankoopmakelaars in Haaglanden vindt u op Funda.
Woningaanbod
Harstenhoekweg 131 • verkocht • € 550000,-
Omschrijving
Informatie
Ligging
in woonwijk
Onderhoud buiten
goed
Oppervlakte
146 m2
Onderhoud binnen
goed
Inhoud
535 m3
Bijzonderheden
gedeeltelijk gestoffeerd
Perceeloppervlak
0 m2
Isolatie
dubbel glas
Bouwjaar
1917
Dak
bitumineuze dakbedekking
Ik heb interesse!
Wilt u een afspraak maken voor een bezichtiging, of wilt u meer informatie over deze aanbod? Neem dan direct contact met ons op! Vul het formulier in of neem telefonisch contact met ons op, zodat wij u direct kunnen helpen (* = verplicht!).





































