Dit is een buitengewoon charmant 3-laags bovenhuis (1911) met de voordeur op straatniveau en een terras grenzend aan de woonkamer. Gelegen op een fantastische locatie in het Haagse Hofkwartier: een autovrij zijstraatje van de Prinsestraat, midden in de historische binnenstad. De woning heeft een woonkamer met open keuken, twee slaapkamers, een werkkamer, een badkamer, en op de begane grond de gasten-wc. Wordt u eigenaar van dit aantrekkelijke, goed onderhouden huis?
LOCATIE De Korte Molenstraat, het verlengde van de Molenstraat is een rustige straat met fraaie panden. De woning ligt in het Hofkwartier, het historische hart rondom Paleis Noordeinde, onderdeel van de Haagse binnenstad. Op zeer korte loopafstand van de Paleistuin, het Lange Voorhout, het regeringscentrum, lokale detailhandel (onder meer Prinsestraat, Noordeinde, Hoogstraat, Venestraat), hotels en een groot aantal horecavestigingen waaronder veel restaurants met verschillende keukens, lunchrooms, eetcafés, cafés. Verschillende musea, theaters, een manege, sportscholen, een zwembad zijn op een paar minuten loopafstand. Bovendien nabij diverse openbaar vervoersverbindingen en NS-stations Den Haag CS/HS. Het Rijkswegennet (A-12, A-4, A-44) is redelijk goed bereikbaar.
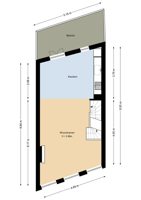
INDELING
BEGANE GROND: voordeur, ruime entreehal met een betegelde vloer, de meterkast en de wc-ruimte met fontein. Een fiets kan er staan.
EERSTE VERDIEPING: de U-vormige woonkamer met bijgetrokken overloop en open keuken heeft openslaande deuren naar het terras aan de achterzijde. Het zitgedeelte heeft drie fraaie raampartijen, een schoorsteenmantel en zicht op prachtige gevels en dakconstructies. De eetkeuken heeft een moderne wandopstelling met een (2023 inbouw-)vaatwasser, stoomoven, gaskookplaat, afzuigkap en koel-/vriescombinatie. Het terras vangt de ochtend- en middagzon.
TWEEDE VERDIEPING Overloop. Aan straatzijde ligt slaapkamer 1 met drie ramen en een praktische vaste kast. Aan de achterzijde ligt slaapkamer 2 met een dakraam en een vaste kast. De tussenliggende badkamer is neutraal betegeld en modern ingericht met een douche, wc, designradiator, een meubel met wastafel en een spiegelkastje.
KAPVERDIEPING Overloop met een dakkapel, een berging met de opstelplaats voor de wasmachine en een tweede berging met de opstelplaats voor de Cv-ketel. Aan de voorzijde is slaap-/werkkamer 3.
VLOERDECORATIE De woon- en slaapverdiepingen hebben, behalve de badkamer, een mooie visgraatparketvloer met bies.
VVE Vijf/zevende aandeel in een VvE met een goed onderhoudsbeleid. De maandelijkse VvE-bijdrage: EUR 157,50. VvE-saldo per 05 november 2025: EUR 6202,99.
ONDERHOUD De kosten van onderhoud van onder meer de raamkozijnen, alles met glas, de terrasconstructie komen ten laste van de eigenaar die daarvan gebruik maakt. Het buitenschilderwerk werd in september 2025 uitgevoerd.
VERDER Eigen grond, Rijks Beschermd Stadsgezicht Centrum; gelet op het bouwjaar worden in de NVM-koopakte milieu-, funderings- en ouderdomsclausules opgenomen; eigendomsoverdracht in overleg.
AANKOOPMAKELAAR Interesse in dit huis? Schakel dan uw eigen NVM-aankoopmakelaar in. Uw NVM-aankoopmakelaar komt op voor uw belang en bespaart u tijd, geld en zorgen. Adressen van collega NVM-aankoopmakelaars in Haaglanden vindt u op Funda.
Woningaanbod
Korte Molenstraat 22 • verkocht onder voorbehoud • € 535000,-
Omschrijving
Informatie
Ligging
aan rustige weg, in centrum
Onderhoud buiten
goed
Oppervlakte
95 m2
Onderhoud binnen
goed
Inhoud
339 m3
Bijzonderheden
beschermd stads of dorpsgezicht
Perceeloppervlak
0 m2
Isolatie
dubbel glas
Bouwjaar
1911
Dak
bitumineuze dakbedekking
Ik heb interesse!
Wilt u een afspraak maken voor een bezichtiging, of wilt u meer informatie over deze aanbod? Neem dan direct contact met ons op! Vul het formulier in of neem telefonisch contact met ons op, zodat wij u direct kunnen helpen (* = verplicht!).










































