Uitstekend gelegen en goed onderhouden 3-kamer appartement op de tweede woonlaag met twee balkons en een ruime berging in de kelder. Centrale ligging in de wijk Uilennest (Benoordenhout), pal naast het prachtige Park Clingendael met uitgestrekte wandelmogelijkheden tot in Wassenaar. Goede verbinding met uitvalswegen (A-44, A-12) en openbaar vervoer (o.a. Centraal Station) eenvoudig bereikbaar. De zeer ruime kelderberging is niet alleen geschikt voor opslag, maar biedt, door de aanwezigheid van douche, wc en keukenblok, veel mogelijkheden als bijvoorbeeld hobbyruimte of atelier..
Indeling van het door ons aangeboden sfeervolle appartement.
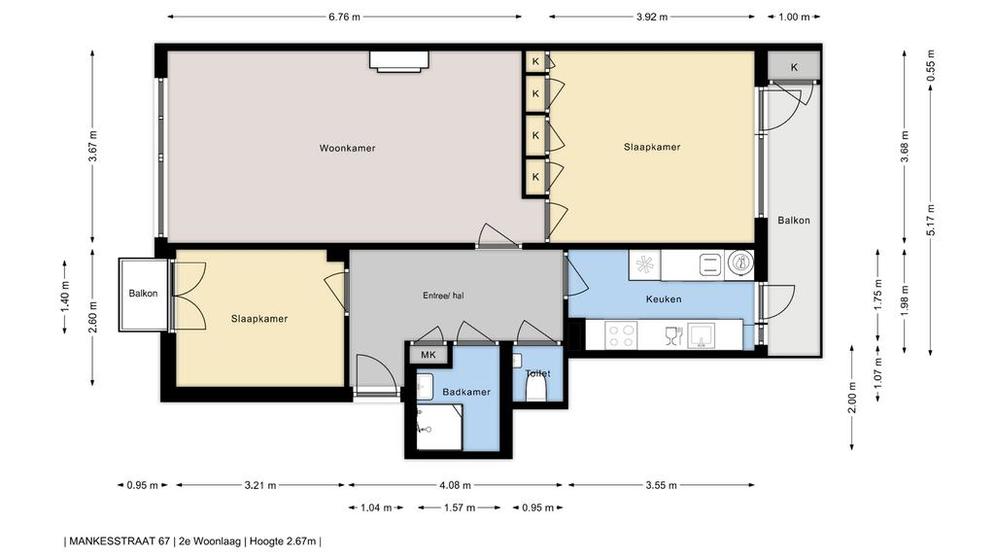
Entree via gesloten portiek en trap naar tweede woonlaag. Flatentree.
Ruime hal/entree met de meterkast en de wc-ruimte met fontein. Grote, lichte woon-eetkamer met vinyl vloer en ruim uitzicht. Aan de achterzijde: een goed formaat slaapkamer met een vaste kastenwand en toegang tot het balkon. Voorzijkamer met openslaande deuren naar een balkon.
Aan de achterzijde de keukenruimte met een deur naar het balkon, ingericht met een moderne keukenopstelling met inbouwapparatuur zoals inductie kookplaat, vaatwasser, koelkast en elektrische oven en de opstelplaats boiler. Tussenliggende badkamer met douche en vaste wastafel.
Het woning-brede balkon ligt op het westen en vangt de middag- en avondzon.
BERGING IN HET SOUTERRAIN In de onderbouw is een royale berging met wc, douche en eenvoudig keukenblok. Zeer geschikt voor een hobbyruimte, atelier of gewoon opslag.
Bijzonderheden:
- Rijks Beschermd Stadsgezicht;
- Woonoppervlakte circa 72 m2, berging 21m2;
- Voorzijde kunststof kozijnen met dubbel glas, achter hout met dubbel glas;
- Actieve VvE met een maandelijkse bijdrage van € 169,35 (plus € 156,- voorschot stookkosten);
- Ouderdom-, materialen en niet-bewonersclausules in NVM koopovereenkomst;
- Oplevering kan snel.
Woningaanbod
Mankesstraat 67 • verkocht • € 400000,-
Omschrijving
Informatie
Ligging
aan park, aan rustige weg, in woonwijk
Onderhoud buiten
goed
Oppervlakte
72 m2
Onderhoud binnen
goed
Inhoud
235 m3
Bijzonderheden
Perceeloppervlak
0 m2
Isolatie
Bouwjaar
1957
Dak
Ik heb interesse!
Wilt u een afspraak maken voor een bezichtiging, of wilt u meer informatie over deze aanbod? Neem dan direct contact met ons op! Vul het formulier in of neem telefonisch contact met ons op, zodat wij u direct kunnen helpen (* = verplicht!).




























