Sfeervol dubbel bovenhuis met balkon en heerlijk dakterras, aan een aantrekkelijke straat in Oud-Scheveningen. Een superlocatie voor strandliefhebbers, watersporters en iedereen die graag even uitwaait voor en na werk.
Aan de Nieuwe Laantjes 91 woon je precies waar Scheveningen zo geliefd om is: rustig en karaktervol, maar met het strand, de boulevard en de gezellige Keizerstraat op korte afstand. Dit dubbele bovenhuis heeft een warme, huiselijke sfeer, fijne lichtinval en meerdere buitenruimtes.
LOCATIE De Nieuwe Laantjes loopt parellel aan de Keizerstraat. Het is een rustige straat, op zeer korte loopafstand van de lokale winkels, speciaalzaken en horeca. Het strand, de zee en openbaar vervoer (lijnen 1, 10, 22) zijn kortbij.
INDELING BEGANE GROND De voordeur is op de begane grond.
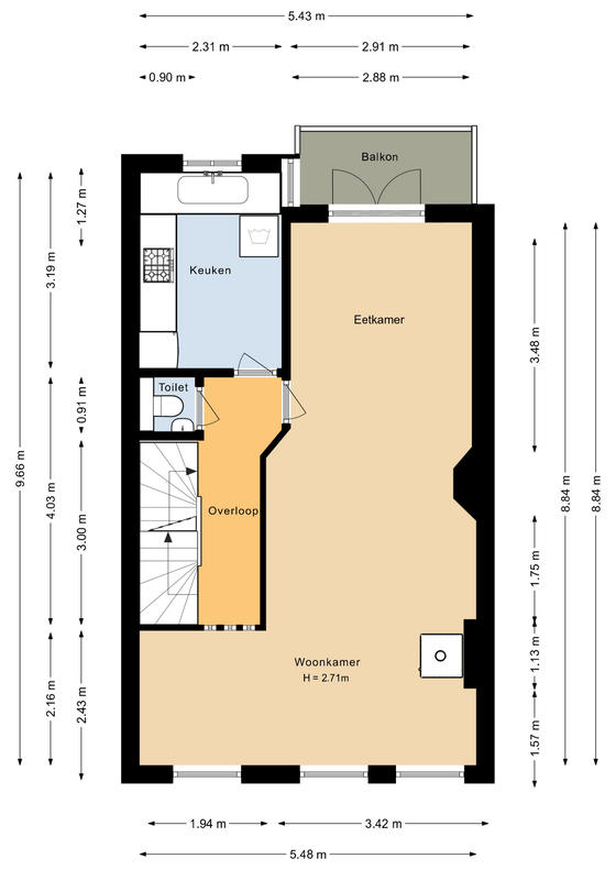
INDELING EERSTE VERDIEPING Overloop met de wc-ruimte met fontein. Een lichte L-vormige zit-/eetkamer met aan straatzijde drie raampartijen en aan de achterzijde openslaande deuren naar het balkon met middag- en avondzon. De woonkamer is ruim en leefbaar, met genoeg plek voor een comfortabele zithoek én een grote eettafel. De keukenruimte ligt separaat aan de achterzijde en is praktisch, maar sober ingericht.
INDELING TWEEDE VERDIEPING Overloop met een vaste kast. Aan straatzijde twee charmante slaapkamers met een dakkapel. Aan de achterzijde: de badkamer en de derde slaapkamer met een vaste kast en deur naar het dakterras. De badkamer is ingericht met een douche, een meubel met wastafel, een designradiator, twee vaste kasten en een kast met de opstelplaats voor de cv-ketel.
DAKTERRAS Het dakterras (zuidwesten) biedt zicht op het Scheveningse dak-plan en vangt vrijwel de gehele dag zon. Een fijne plek voor lees-, borrel en memorabele momenten.
Bijzonderheden:
- Gebouwd op eigen grond;
- Woonoppervlakte circa 93 m2, buitenruimte circa 14 m2;
- Actieve VvE met een bijdrage van € 120,- per maand;
- Energielabel C;
- Beschermd Stadsgezicht Scheveningen Dorp;
- In NVM koopovereenkomst staan ouderdoms-, materialen en niet-bewonersclausules;
- Oplevering kan snel.
Woningaanbod
Nieuwe Laantjes 91 • beschikbaar • € 497500,-
Omschrijving
Informatie
Ligging
aan rustige weg, in woonwijk
Onderhoud buiten
goed
Oppervlakte
93 m2
Onderhoud binnen
goed
Inhoud
327 m3
Bijzonderheden
gestoffeerd
Perceeloppervlak
0 m2
Isolatie
dakisolatie, dubbel glas
Bouwjaar
1910
Dak
bitumineuze dakbedekking
Ik heb interesse!
Wilt u een afspraak maken voor een bezichtiging, of wilt u meer informatie over deze aanbod? Neem dan direct contact met ons op! Vul het formulier in of neem telefonisch contact met ons op, zodat wij u direct kunnen helpen (* = verplicht!).











































