Een ruime, goed onderhouden benedenwoning met een forse zit-/eetkamer en in de twee-laags uitbouw drie (slaap)vertrekken. De achtertuin ligt op het noordwesten.
LOCATIE: In woonwijk Duinoord. Tussen de Koningin Emmakade en de winkelrijke Reinkenstraat, op korte loopafstand van openbaar vervoer (onder meer lijnen 17, 11, 3, 24), op fietsafstand van de binnenstad en het Noordzeestrand, niet ver van de CentrumRing en de Utrechtse Baan.
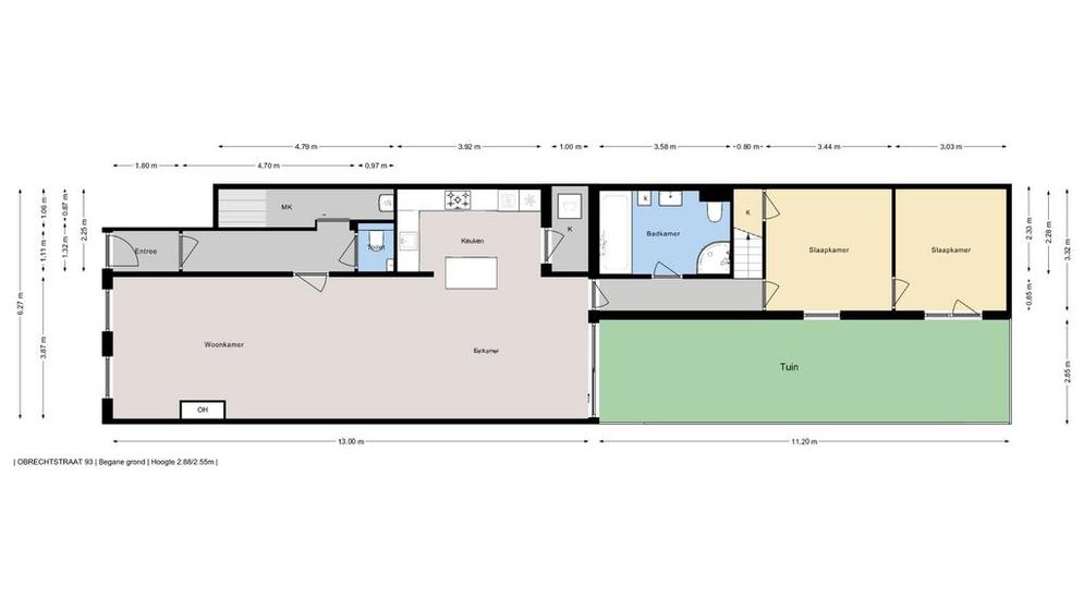
INDELING:
Voordeur, gang met de modern ingerichte wc-ruimte met fontein, alsmede een ruime trapkast met de elektrische installatie en de opstelplaats voor de Cv-ketel.
De royale woonkamer (circa 1300x385) heeft een fraaie lamelparketvloer en een schuifpui naar de achtertuin. De keukenruimte is in open verbinding met de woonkamer en is ingericht met een eigentijdse L-vormige opstelling met een (inbouw-)Siemens vaatwasser, Siemens inductiekookplaat, Siemens magnetron, Siemens heteluchtoven, een koel-/vriescombinatie en een Quooker. Vanuit de keuken toegang tot een bijkeuken met de wasmachineaansluiting.
UITBOUW BEGANE GROND: Gang. Modern uitgevoerde badkamer met een ligbad, wandkast, douchecabine, wandcloset, wastafel en designradiator. Vervolgens twee achter elkaar liggende slaapkamers.
UITBOUW EERSTE VERDIEPING: Grote slaapkamer met toegang tot het balkon.
TUIN: De achtertuin (circa 1100x285) ligt langs de uitbouwkamers.
ONDERHOUD: Het huis is goed onderhouden. Een onafhankelijk bouwkundig rapport is beschikbaar.
VvE: een/tweede aandeel in een redelijke actieve Vereniging van Eigenaars. De maandelijkse VvE-bijdrage: EUR 40,00.
VERDER: bouwjaar 1895, eigen grond, in de NVM-koopakte worden gezien de (ver)bouwperiode milieu-, asbest-, funderings- en ouderdomsclausules opgenomen, oplevering in overleg (kan snel).
Woningaanbod
Obrechtstraat 93 • verkocht • € 675000,-
Omschrijving
Informatie
Ligging
aan rustige weg, in woonwijk
Onderhoud buiten
goed
Oppervlakte
132 m2
Onderhoud binnen
goed
Inhoud
508 m3
Bijzonderheden
beschermd stads of dorpsgezicht
Perceeloppervlak
0 m2
Isolatie
dubbel glas
Bouwjaar
1895
Dak
pannen, bitumineuze dakbedekking
Ik heb interesse!
Wilt u een afspraak maken voor een bezichtiging, of wilt u meer informatie over deze aanbod? Neem dan direct contact met ons op! Vul het formulier in of neem telefonisch contact met ons op, zodat wij u direct kunnen helpen (* = verplicht!).












































