A beautifully presented one bedroom apartment on the first floor of a modern apartment complex with a living/dining with open-plan kitchen, a gorgeous sunny terrace (southeast) with a great view, a balcony (northwest) and a contemporary bathroom. For English scroll down and see Funda English.
Eigentijds woongemak in een geliefd wooncomplex grenzend aan het Piet Heinplein, dat momenteel wordt heringericht. Het wordt een buitengewoon aantrekkelijke plek. De bruggen worden vernieuwd en de gracht wordt opengelegd. Daarna is uw uitzicht een prachtige singel met kademuren en een opstapplek waar (rondvaart)boten kunnen aanmeren.
Bovendien is de woning op zeer korte loopafstand van de winkel- en restaurantrijke Piet Heinstraat, Noordeinde, Prinsestraat, alsmede de terrassen aan het Anna Paulownaplein.
Hier bieden wij aan: Een prachtig twee-/driekamerappartement op de eerste verdieping met circa 78m2 woonoppervlakte, een groot terras op het zuidoosten, een balkon aan de achterzijde en een berging in de onderbouw.
HOOFDENTREE: aan de Anna Paulownastraat-zijde. (Beveiligde) entreehal, lift naar woonlaag, corridor.
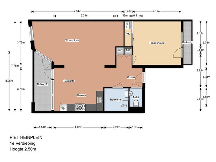
INDELING Voordeur flat, entreehal met garderobe-/meterkast en een moderne wc-ruimte met fontein.
Royale en lichte zit-/eetkamer met een open keuken. De praktisch ingerichte, moderne keukenopstelling heeft boven- en onderkasten, een 5-zones inductiekookplaat, ventilatiekap, oven, vaatwasser, koel/vriescombinatie en een essenhouten werkblad.
Het terras biedt een geweldig uitzicht op de Toussaintkade, de Koninklijke stallen, de Paleistuin, de toren van de Grote of St. Jacobskerk, vangt ochtend- en middagzon en is bereikbaar vanuit het zit- en eetgedeelte.
Aan de rustige binnenzijde van het complex een grote slaapkamer met een ingebouwde kledingkast (met de opstelplaats voor de wasmachine), een praktische wandkast en deur naar het achterbalkon op het noordwesten.
Tussenliggende eigentijds ingerichte badkamer met inloopdouche met verstelbare regendouche, badkamermeubel, spiegelkast en handdoekradiator.
BERGING: In de onderbouw is een ruime berging.
PARKEREN: In de aangrenzende parkeergarage zijn regelmatig parkeerplaatsen te huur. In de directe omgeving, met een parkeervergunning.
VvE-bijdrage: Euro 205,00 per maand (INCLUSIEF verbruik gas, warm en koud water, diverse verzekeringen, onderhoud gebouw (binnenkort starten schilderwerkzaamheden), gebruik liftinstallatie). Voorschot stookkosten: Euro 82,00 per maand (actuele kosten ongeveer Euro 40,00 per maand). Goed om te weten: het gebouw heeft zonnecollectoren en binnenkort een warmtepomp.
EN VERDER: Eigen grond, bouwjaar 1980, Beschermd Stadsgezicht, in de NVM-koopakte worden ouderdoms- en (toekomstige-)milieuclausules opgenomen, oplevering in overleg.
0-0-0
LOCATION The apartment is located only moments away from a wide array of shops and restaurants (Noordeinde, Piet Heinstraat), enormously popular public spaces such as Anna Paulownaplein, several hotels (Ambassador, Hilton), museums and theaters, as well as the convenience of supermarkets.
LAY-OUT Secure entrance hall, lift (or staircase) to 1st floor, entrance to the flat.
Hallway with a wardrobe and toilet. Spacious living/dining room with an open-plan kitchen. Two doors open unto to the southeast facing terrace which catches the morning and afternoon sun. The terrace offers a lovely view of The Hague’s skyline, the historical canal (and future port) and historical buildings of the city.
The contemporary kitchen is fitted with a fridge/freezer, oven, dishwasher and ash worktop.
At the back of the building you will find the master bedroom (approx.495x295) with a perfect built-in wardrobe (with the connection for the washing machine), a second wardrobe and the access to the balcony on the northwest side.
Stylish bathroom with walk-in shower, a nice shower head, radiator, vanity unit and mirror cabinet.
In the basement: the property includes a spacious storeroom.
Association of apartment owners: monthly contribution: EUR 205,00 (INCLUDING water/gas consumption, maintenance of the building/lift, insurances). Advance payment for heating costs: Euro 80,00 per month (actual costs approx. EUR 40,00).
Miscellaneous items: Freehold land; ‘beschermd stadsgezicht’, the dimensions given above are approximate, due to the year of construction the following clauses will be stipulated in the NVM-purchase deed: 'milieu-, ouderdoms- and asbestclausules'.
Woningaanbod
Piet Heinplein 80 • verkocht • € 417500,-
Omschrijving
Informatie
Ligging
aan rustige weg, in woonwijk, vrij uitzicht
Onderhoud buiten
goed
Oppervlakte
78 m2
Onderhoud binnen
goed tot uitstekend
Inhoud
236 m3
Bijzonderheden
beschermd stads of dorpsgezicht
Perceeloppervlak
0 m2
Isolatie
Bouwjaar
1980
Dak
bitumineuze dakbedekking
Ik heb interesse!
Wilt u een afspraak maken voor een bezichtiging, of wilt u meer informatie over deze aanbod? Neem dan direct contact met ons op! Vul het formulier in of neem telefonisch contact met ons op, zodat wij u direct kunnen helpen (* = verplicht!).


































