Wat een fijn huis! Op een superleuke, energieke locatie in de Haagse binnenstad. Geniet van de voordelen van het historische, dynamische centrum. Ervaar bovendien het comfort en de rust van een STADSTUIN. Circa 89 m2 eigentijds woongemak in een prachtig gebouw met karakteristieke gevels en monumentale stijlkenmerken. Voor parkeergemak: een privé PARKEERPLAATS (vraagprijs EUR 40.000,-).
De door ons aangeboden vierkamerwoning ligt in de linkervleugel van het gebouw, grenzend aan de Lange Lombardstraat. Het appartement heeft een bijzondere plattegrond: het is verdeeld over DRIE WOONLAGEN, heeft een vide/entresol, een slaapkamer en een tweede slaapkamer (dan wel werk-/of studeerkamer), een besloten TUIN en een grote berging.
HET GEBOUW Een van de meest beeldbepalende panden aan de Prinsegracht, gebouwd in 1909 als tuchthuis en later in gebruik als Kantongerecht. In 1993 werd het gebouw volledig gerenoveerd tot een wooncomplex. De appartementen zijn eigentijds en vormen een prachtig geheel met de grandeur en monumentale stijlkenmerken van het gebouw.
Hoofdentree: prachtige voordeur, indrukwekkende entreehal met hoge plafonds, granitovloeren en een fraai trappenhuis.
INDELING WONING
WOONVERDIEPING Voordeur, binnenhal met meterkast, wandkasten en moderne wc-ruimte met fontein. ZITKAMER met een hoog plafond (circa 4.70 meter) en imposante raampartijen. De kamer ligt op het zuidwesten (Lange Lombardstraat -zijde) en vangt prachtig licht.
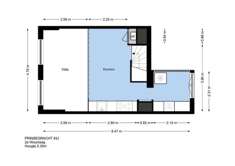
ENTRESOL/EETKEUKEN De eetkamer annex keukenruimte heeft een vaste kast (met de opstelplaats Cv-ketel) en een nette opstelling met (inbouw-)apparatuur. In de bijkeuken is een wandopstelling met een (inbouw-)apparatuur. Het op het noordoosten gelegen Franse balkon biedt zicht op binnentuinen en op bijzondere panden.
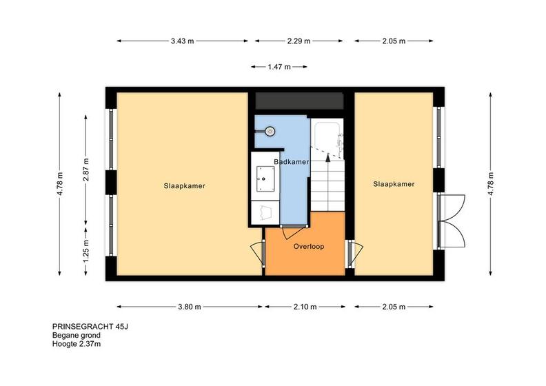
SOUTERRAIN Aan de straatzijde SLAAPKAMER 1, aan de achterzijde SLAAPKAMER 2 met een deur naar de achtertuin. Tussenliggende, fraai betegelde badkamer met ligbad, douche en wastafelmeubel met een mooi werkblad.
TUIN Deze stadstuin is een heerlijke plek voor rust- en eetmomenten.
ONDERHOUD De woning werd voor sinds 2022 deels gerenoveerd. Zo werden de vloeren aangepakt, muren in de grote slaapkamer en badkamer vervangen en geďsoleerd, een mechanische ventilatie-box geplaatst, de badkamer aangepakt en de trappen gerenoveerd.
ENERGIELABEL De VvE-leden hebben de mogelijkheid beglazing aan de achterzijde van het complex te laten vervangen door HR++ Isolatieglas met Argongas. Na plaatsing zal het Energielabel verbeteren: Energielabel A. De offerte voor huisnummer 45-J: EUR 1538,77.
BERGING In de onderbouw van het pand een ruime (kelder)berging. Een ideale plek om veel op te bergen.
PARKEERPLAATS en gemeenschappelijke FIETSENBERGING In de belendende garage aan de Lange Lombardstraat is een privé parkeerplaats, alsmede een gemeenschappelijke fietsenberging.
VVE WONING: 98/2057-ste aandeel in de VvE met een actief onderhoudsbeleid. De maandelijkse VvE-bijdrage: EUR 293,68 (onder meer voor gemeenschappelijk onderhoud, opbouw reservefonds, schoonmaak, verzekeringen). beschikbaar.
VVE PARKEERPLAATS: 5/213-de aandeel in de VvE met een actief onderhoudsbeleid. De maandelijkse VvE-bijdrage: EUR 22,72.
EN VERDER: Rijks Beschermd Stadsgezicht Centrum; eeuwigdurende rechten van erfpacht (de canonverplichting is eeuwigdurend afgekocht, de beheerkosten zijn: 2x EUR 32,00 per jaar), in de NVM-koopakte worden de ouderdoms-, funderings- en milieuclausules opgenomen; oplevering in overleg.
AANKOOPMAKELAAR Interesse in dit huis? Schakel dan uw eigen NVM-aankoopmakelaar in. Uw NVM-aankoopmakelaar komt op voor uw belang en bespaart u tijd, geld en zorgen. Adressen van collega NVM-aankoopmakelaars in Haaglanden vindt u op Funda.
Woningaanbod
Prinsegracht 45 J • verkocht • € 495000,-
Omschrijving
Informatie
Ligging
in centrum
Onderhoud buiten
goed
Oppervlakte
89 m2
Onderhoud binnen
goed
Inhoud
329 m3
Bijzonderheden
monumentaal pand, beschermd stads of dorpsgezicht
Perceeloppervlak
0 m2
Isolatie
gedeeltelijk dubbel glas
Bouwjaar
1909
Dak
leisteen, bitumineuze dakbedekking
Ik heb interesse!
Wilt u een afspraak maken voor een bezichtiging, of wilt u meer informatie over deze aanbod? Neem dan direct contact met ons op! Vul het formulier in of neem telefonisch contact met ons op, zodat wij u direct kunnen helpen (* = verplicht!).




















































