Zeer ruim (143m2) en bijzonder ingedeeld bovenhuis, verdeeld over de eerste en derde etage, met vier slaapkamers, twee badkamers en drie balkons. Een ideale lay-out als de woning moet worden gedeeld met kinderen, plek voor logees/familiebezoek of werkenden/studerenden aan huis.
LOCATIE Gelegen aan brede en groene laan met relatief veel parkeerplaatsen. In de directe omgeving vinden we gezellige winkelstraten (Appelstraat en Vlierboomstraat), een ruim en modern opgezet winkelcentrum (De Savornin Lohmanlaan) en voldoende openbaar vervoer richting strand (bus 23 en 14) en centrum (tram 2 en 3). Voor de ontspanning en beweging is er een zwembad in de straat, diverse sportverenigingen in de omgeving en het strand op korte fietsafstand. Uitvalswegen zijn makkelijk bereikbaar.
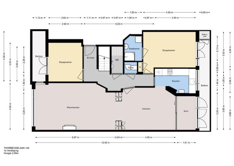
Indeling van het door ons aangeboden bovenhuis.
Entree via open portiek naar de woonlaag.
EERSTE VERDIEPING Entreehal/gang met toegang tot een grote kast (met de elektrische installatie) en de wc met fontein.
Royale zit-/eetkamer met kastenseparatie en een schuifdeur naar serre. Vanuit de serre, via volledig wegklapbare deuren, toegang tot het zonnige achterbalkon over de volle breedte. Vanuit de woonkamer een open doorgang naar de keukenruimte met L-vormige opstelling.
Aan de achterzijde: een ruime slaapkamer 1 met vaste kast, openslaande deuren naar het balkon en toegang tot de badkamer met douche, vaste wastafel en opstelplaats wasmachine. Aan de straatzijde: slaapkamer 2 met openslaande deuren naar een heerlijk koel balkon.
Vanuit de hal een trap -met halverwege een overloop- naar de derde etage.
DERDE VERDIEPING Overloop met toegang tot badkamer 2 met een douche, vaste wastafel, wc en opstelplaats voor de cv-ketel.
Twee grote slaapkamers: slaapkamer 3 met dakkapel en berging, slaapkamer 4 met vaste kasten en toegang tot het balkon.
Bijzonderheden:
- gelegen op eigen grond;
- actieve VvE met een bijdrage van € 182,- per maand;
- woonoppervlakte circa 143 m2;
- zonnige balkons;
- ouderdom-, milieu- en materialenclausules in NVM koopakte;
- oplevering in overleg.
Woningaanbod
Thorbeckelaan 144 • verkocht • € 409000,-
Omschrijving
Informatie
Ligging
aan drukke weg, in woonwijk, vrij uitzicht
Onderhoud buiten
redelijk tot goed
Oppervlakte
143 m2
Onderhoud binnen
redelijk tot goed
Inhoud
497 m3
Bijzonderheden
Perceeloppervlak
0 m2
Isolatie
Bouwjaar
1934
Dak
pannen, bitumineuze dakbedekking
Ik heb interesse!
Wilt u een afspraak maken voor een bezichtiging, of wilt u meer informatie over deze aanbod? Neem dan direct contact met ons op! Vul het formulier in of neem telefonisch contact met ons op, zodat wij u direct kunnen helpen (* = verplicht!).





























