Het is fijn wonen in het aantrekkelijke Zeeheldenkwartier! Wij bieden aan een dubbele bovenwoning met kapverdieping (circa 130m2). Een goed onderhouden huis met een efficiënte indeling: een L-vormige zit-/eetkamer met open keuken, een BALKON grenzend aan de woonkamer, vier slaapkamers en een TERRAS (ZW). Kenmerkend voor dit bovenhuis: de prachtige, optimale lichtval.
LOCATIE: Van Diemenstraat is een zijstraat van de populaire Prins Hendrikstraat met zijn talloze leuke winkels, boetiekjes, cafés en eetgelegenheden. Niet ver van de Piet Heinstraat en het terras- en restaurantrijke Anna Paulownaplein, Prins Hendrikplein en Piet Heinplein. Ook dichtbij: supermarkten, de heerlijke Paleistuin, het Koningsplein, de binnenstad en openbaar vervoer. Op fietsafstand van de NS-stations en natuurlijk het Noordzeestrand.
Indeling van dit sympathieke huis:
ENTREE: Voordeur, halletje met elektrische installatie, binnentrap naar woonlaag.
EERSTE VERDIEPING: Overloop met wc-ruimte met fontein. Ruime woonkamer met bijgetrokken zijkamer en openslaande deuren naar het inpandige balkon. De keukenruimte is in open verbinding met woonkamer. De praktisch ingedeelde keukenopstelling (2018) heeft een fraai werkblad en is voorzien van een (AEG inbouw-)koel-/vrieskast, vaatwasser, oven en afzuigkap. Het BALKON is als het ware een verlenging van woonkamer. Een heerlijke plek om te genieten van de middagzon.
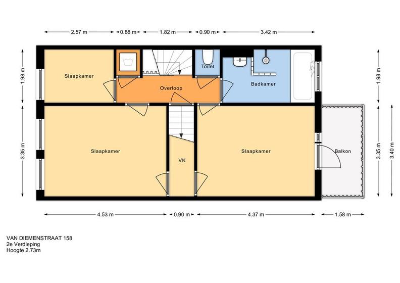
TWEEDE VERDIEPING: Overloop met wc en een vaste kast met de opstelplaats voor de wasmachine en -droger. Aan de voorzijde SLAAPKAMER 1 en de kleinere SLAAPKAMER 2. Aan de achterzijde SLAAPKAMER 3 met toegang naar het terras. Tussen de twee hoofdslaapkamers een doorloop, almede opslagruimte (onder de zoldertrap). De badkamer is doelmatig ingericht met een inloopdouche, ligbad, designradiator, wastafel, wastafelmeubel en spiegelkastje.
Het TERRAS ligt op het zuidwesten en vangt volop zon: van het einde van de ochtend tot de avonduren.
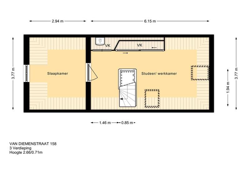
KAPVERDIEPING: Deze zolderruimte is verdeeld over twee ruimtes. Een charmant SLAAPVERTREK met kleine dakkapel aan straatzijde en een royale overloop/werkruimte met een kast met de opstelplaats Cv-ketel en veel bergruimte. Twee dakramen zorgen voor lichtinval.
BUITENONDERHOUD: In 2021 werd het buitenschilderwerk voorzijde uitgevoerd, in 2015 werd de achterzijde aangepakt. De pannen dakbedekking werd in 1997 vervangen.
ISOLATIE: De woning heeft kozijnen met dubbele beglazing en dakisolatie.
VERDER: bouwjaar 1900, eigen grond, gemeentelijk beschermd stadsgezicht, 5/8-ste aandeel in een actieve VvE, gezien het bouwjaar worden in de NVM-koopakte milieu-, asbest-, funderings- en ouderdomsclausules opgenomen, overdrachtsdatum in overleg.
Interesse in dit huis? Schakel dan uw eigen NVM-aankoopmakelaar in. Uw NVM-aankoopmakelaar komt op voor uw belang en bespaart u tijd, geld en zorgen. Adressen van collega NVM-aankoopmakelaars in Haaglanden vindt u op Funda.
COVID-19: In kader van de preventie van het Covid19 virus, hanteren wij aangepaste maatregelen. Voor iedere bezichtiging wordt 20 minuten uitgetrokken. Per bezichtiging laten wij maximaal twee personen van een huishouden toe tot de woning, eventueel vergezeld van een aankoopmakelaar (dus in dat geval maximaal drie personen).
Woningaanbod
Van Diemenstraat 158 • verkocht • € 550000,-
Omschrijving
Informatie
Ligging
aan rustige weg, in woonwijk
Onderhoud buiten
redelijk tot goed
Oppervlakte
131 m2
Onderhoud binnen
goed
Inhoud
483 m3
Bijzonderheden
beschermd stads of dorpsgezicht
Perceeloppervlak
0 m2
Isolatie
dakisolatie, dubbel glas
Bouwjaar
1900
Dak
pannen
Ik heb interesse!
Wilt u een afspraak maken voor een bezichtiging, of wilt u meer informatie over deze aanbod? Neem dan direct contact met ons op! Vul het formulier in of neem telefonisch contact met ons op, zodat wij u direct kunnen helpen (* = verplicht!).




































