Een ruim en uitstekend gelegen dubbele bovenwoning met zeven kamers en twee balkons. Ligging in het verlengde van het winkeldeel van de aantrekkelijke Van Hoytemastraat en op zeer korte afstand van de uitvalswegen. Centraal Station en de Haagse binnenstad op enkele fietsminuten afstand. Diverse parken, diverse lagere- en middelbare scholen en sportvoorzieningen in de directe omgeving.
Indeling van het door ons aangeboden bovenhuis.
BEGANE GROND Entree op straatniveau, halletje met meterkast, binnentrap naar de eerste verdieping.
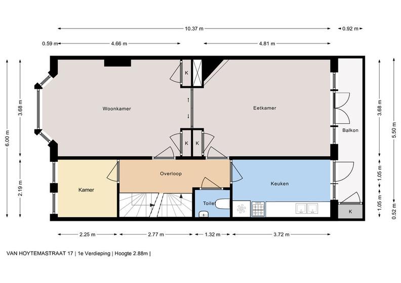
EERSTE VERDIEPING Overloop met wc-ruimte met fontein.
Aantrekkelijke woon- en eetkamer en suite met kastenseparatie met glas-in-loodschuifdeuren en openslaande deuren naar het balkon (noordoost) over de volle breedte van het huis. Keukenruimte voorzien van een sobere opstelling met onder- en bovenkasten, alsmede een deur naar het eerder genoemde balkon. Een voorzijkamer maakt deze etage compleet.
TWEEDE VERDIEPING Overloop met dakvenster, toegang tot de wc met fontein.
Aan de straatzijde: een slaapkamer met vaste kast en een zijkamer met vaste kast.
Aan de achterzijde: een slaapkamer met vaste kast en openslaande deuren naar het balkon (noordoost) over de volle breedte en een zijkamer met openslaande deuren naar het balkon. Tussenliggende badkamer met douche, vaste wastafel in meubel, dakraam en opstelplaats wasmachine.
Bijzonderheden:
- gelegen op eigen grond
- recent opgestarte VvE met een bijdrage van € 203,66 per maand;
- woonoppervlakte circa 127 m2, buitenruimte 11 m2;
- Rijks Beschermd Stadsgezicht Benoordenhout;
- ouderdom-, materialen-, funderings- en milieuclausules in NVM koopakte;
- oplevering in overleg.
Woningaanbod
Van Hoytemastraat 17 • verkocht • € 537500,-
Omschrijving
Informatie
Ligging
in woonwijk
Onderhoud buiten
goed
Oppervlakte
127 m2
Onderhoud binnen
redelijk
Inhoud
443 m3
Bijzonderheden
gedeeltelijk gestoffeerd, beschermd stads of dorpsgezicht
Perceeloppervlak
0 m2
Isolatie
Bouwjaar
1929
Dak
pannen, bitumineuze dakbedekking
Ik heb interesse!
Wilt u een afspraak maken voor een bezichtiging, of wilt u meer informatie over deze aanbod? Neem dan direct contact met ons op! Vul het formulier in of neem telefonisch contact met ons op, zodat wij u direct kunnen helpen (* = verplicht!).











































