Van Loostraat (Statenkwartier) is een rustige woonstraat met eenrichtingsverkeer. Hier bieden wij een bijzondere benedenwoning met een uniek drie-laags achterhuis, drie slaapkamers, een grote kelder en een zonnige L-vormige achtertuin (NW). De woning is goed geďsoleerd en extern in goede staat van onderhoud, de inrichting is evenwel gedateerd en sober. Gaat u aan de slag om een eigentijds karakter eraan te geven?
LOCATIE Huisnummer 71 ligt tussen de Jacob Gillesstraat en Aert van der Goesstraat, in de zogenaamde International Zone. Op zeer korte loopafstand van winkel- en restaurantrijke straten (Frederik Hendriklaan, Aert van der Goesstraat, Valeriusstraat), internationale organisaties, openbaar vervoer, een speeltuin. Op korte afstand van (internationale) scholen, musea, parken.
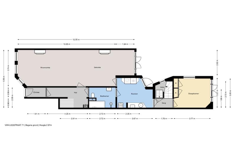
INDELING
Voordeur, vestibule, vestibuledeur, gang met de meterkast, deur naar de wc/badkamer.
WOONKAMER Ruime zit-/eetkamer met schoorsteenmantels, een gaskachel en openslaande deuren naar de achtertuin. De KEUKENRUIMTE is royaal, heeft een deur naar de tuin, de badkamer en het achterhuis. Het is voorzien van een gedateerde opstelling met (inbouw-)koelkast en vaatwasser.
WC/BADKAMER De badkamer is eenvoudig ingericht met een ligbad, douche, wastafel en de wc.
ACHTERHUIS BEGANE GROND Gang met trappenhuis. Slaapkamer 1 met twee vaste kasten en openslaande deuren naar de tuin.
ACHTERHUIS EERSTE VERDIEPING Overloop. Slaapkamer 2.
ACHTERHUIS TWEEDE VERDIEPING Overloop met vaste kast en een dakraam. Slaapkamer 3 met een raam en dakraam.
ACHTERHUIS KELDER Ruime kelder (plafondhoogte: 1.93m) met de opstelplaats voor de wasmachine. Eerder dit jaar werd een keldervochtwering uitgevoerd.
TUIN De L-vormige tuin (noordwesten) ligt langs en achter het achterhuis en vangt volop de middag- en avondzon.
ONDERHOUD, ISOLATIE
De woning heeft gedeeltelijk nieuwe kozijnen, ramen en deuren. Het buitenschilderwerk werd in 2018/9 uitgevoerd (individueel onderhoud). De kozijnen zijn vrijwel overal voorzien dubbele/HR+ beglazing. Isolatie kruipruimte woonkamer: steenwol; isolatie kruipruimte keuken: TonZon. In 2010 werd het hoofd-dak aangepakt en voorzien van een isolatielaag. In 2023 kreeg het achterhuis nieuwe dakbedekking (met isolatie).
Een recent opgemaakt bouwkundig rapport is beschikbaar.
VVE Een/tweede aandeel in de ‘VvE Van Loostraat 69/71 te ‘s-Gravenhage’ met een ad hoc onderhoudsbeleid. De maandelijkse VvE-bijdrage: EUR 80,00. De afgelopen jaren is veel onderhoud aan het complex uitgevoerd, waardoor momenteel geen reservefonds is opgebouwd.
VERDER Bouwjaar 1909; eigen grond; gelet op het bouwjaar worden in de NVM-koopakte milieu-, funderings- en ouderdomsclausules opgenomen; eigendomsoverdracht: in overleg.
AANKOOPMAKELAAR Interesse in dit huis? Schakel dan uw eigen NVM-aankoopmakelaar in. Uw NVM-aankoopmakelaar komt op voor uw belang en bespaart u tijd, geld en zorgen. Adressen van collega NVM-aankoopmakelaars in Haaglanden vindt u op Funda.
Woningaanbod
Van Loostraat 71 • verkocht • € 580000,-
Omschrijving
Informatie
Ligging
aan rustige weg, in woonwijk
Onderhoud buiten
goed
Oppervlakte
115 m2
Onderhoud binnen
redelijk
Inhoud
523 m3
Bijzonderheden
beschermd stads of dorpsgezicht
Perceeloppervlak
0 m2
Isolatie
dakisolatie, gedeeltelijk dubbel glas
Bouwjaar
1909
Dak
bitumineuze dakbedekking
Ik heb interesse!
Wilt u een afspraak maken voor een bezichtiging, of wilt u meer informatie over deze aanbod? Neem dan direct contact met ons op! Vul het formulier in of neem telefonisch contact met ons op, zodat wij u direct kunnen helpen (* = verplicht!).







































