Word jij de nieuwe eigenaar van deze (starters)woning? Een sympathiek vierkamer-appartement op de tweede verdieping, met drie slaapkamers, een balkon (zuidoosten) en een grote kelderruimte. Gelegen aan de rustige Veenendaalkade met uitzicht over het water.
LOCATIE
Huisnummer 404 ligt op een steenworp afstand van het Haga Ziekenhuis en van bus- en tramstation Leyenburg (met goede verbinding naar het centrum, NS-stations Hollands Spoor en het Centraal Station). Voor de dagelijkse boodschappen is het nog geen vijf minuten lopen naar Winkelcentrum Leyenburg, maar Winkelcentrum Leyweg, de Vlierboom-/Appelstraat en De Savornin Lohmanplein zijn ook niet ver. Het Zuiderpark is 10 minuten wandelen en met een kwartier fietsen ben je bij de duinen en het strand.
INDELING ENTREE
Gesloten portiek met brievenbussen en videofoon deurbellen. Entree met trappenhuis naar de kelderberging en naar de woning op de tweede verdieping.
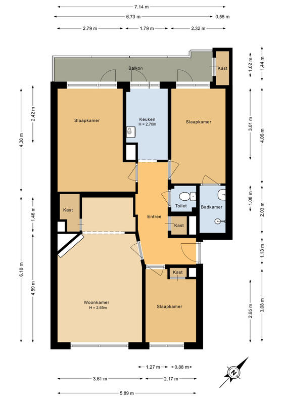
INDELING WONING
Royale binnenhal met de meterkast en de wc-ruimte.
WOONKAMER Aan de voorzijde met diepe kast en schoorsteenmantel. De ruime zitkamer is opvallend licht en biedt een mooi en weids uitzicht op en over het Escampkanaal met woonschepen, boten en haar kades.
KEUKENRUIMTE Keukenopstelling geheel naar eigen smaak te plaatsen, opstelplaats voor de CV-combiketel en een balkondeur.
SLAAPKAMERS Er zijn drie slaapkamers. De ruime hoofdslaapkamer aan de achterzijde heeft een balkondeur. Slaapkamer 2 (met een vaste kast) ligt aan de straatzijde. Slaapkamer 3 aan de achterzijde met toegang tot de doucheruimte en het balkon
BADKAMER Tussenliggende, sober ingerichte doucheruimte met wastafel.
BALKON Het balkon is woning-breed en heeft een opbergkast. Een fijne plek om te genieten van de ochtendzon.
KELDERBERGING De kelderberging is ruim. Een bijzonder praktische en functionele ruimte (met elektra), voor opslag, het stallen van fietsen of te gebruiken als hobbyruimte.
VVE 7/968-ste aandeel in een actieve VvE. De VvE-bijdrage: Euro 115,- per maand.
EN VERDER Eigen grond, bouwjaar 1952, gezien de bouwperiode worden in de NVM-koopakte milieu- en ouderdomsclausules opgenomen, oplevering kan snel.
AANKOOPMAKELAAR Interesse in dit huis? Schakel dan uw eigen NVM-aankoopmakelaar in. Uw NVM-aankoopmakelaar komt op voor uw belang en bespaart u tijd, geld en zorgen. Adressen van collega NVM-aankoopmakelaars in Haaglanden vindt u op Funda.
Woningaanbod
Veenendaalkade 404 • beschikbaar • € 275000,-
Omschrijving
Informatie
Ligging
aan water, in woonwijk, vrij uitzicht
Onderhoud buiten
redelijk tot goed
Oppervlakte
71 m2
Onderhoud binnen
redelijk
Inhoud
239 m3
Bijzonderheden
Perceeloppervlak
0 m2
Isolatie
Bouwjaar
1952
Dak
pannen
Ik heb interesse!
Wilt u een afspraak maken voor een bezichtiging, of wilt u meer informatie over deze aanbod? Neem dan direct contact met ons op! Vul het formulier in of neem telefonisch contact met ons op, zodat wij u direct kunnen helpen (* = verplicht!).

























