Een praktisch ingedeelde benedenwoning met aangebouwde SERRE, twee slaapkamers en een prachtige, zonnige ACHTERTUIN (zuidwesten) met veel privacy en een ACHTERINGANG.
LOCATIE Op enkele minuten loopafstand van de historische binnenstad, de Paleistuin, openbaar vervoer (lijn 16, RandstadRail); op fietsafstand van de NS stations HS en CS en een autominuut van de CentrumRing.
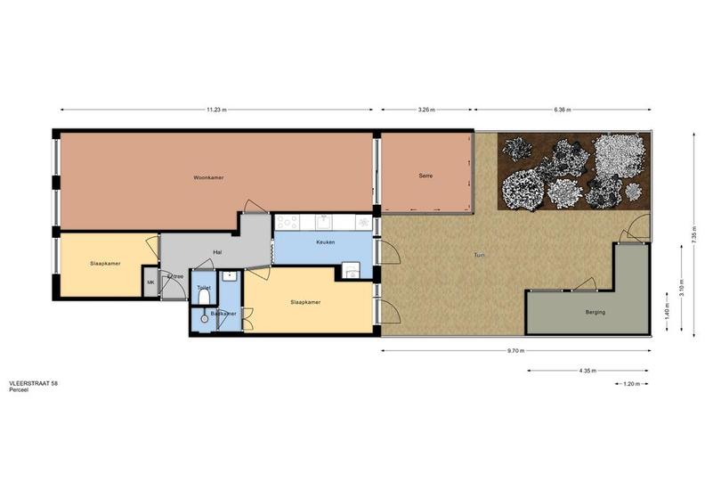
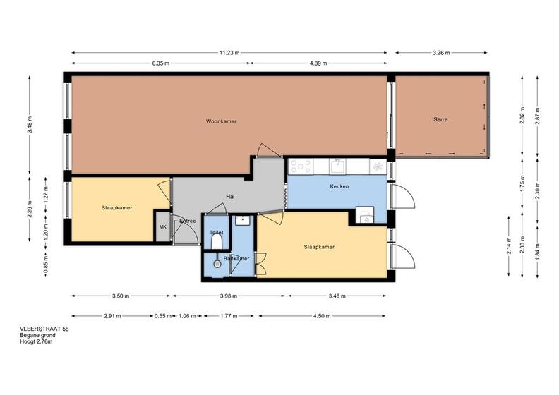
INDELING Semi-open portiek, voordeur woning. L-vormige gang met meterkast en wc-ruimte.
Doorgebroken zit-/eetkamer (circa 11.25 x 4.38/gedeeltelijk 2.68) met een schuifpui naar de (later) aangebouwde serre.
De KEUKENRUIMTE is voorzien van een neutrale opstelling (2018) met onder- en bovenkasten, voorzien diverse (inbouw-)apparatuur, alsmede de opstelplaats voor Cv-ketel en wasmachine.
SLAAPKAMER 1: aan de achterzijde met een deur naar achtertuin. SLAAPKAMER 2: aan de voorzijde.
BADKAMER De badkamer is bereikbaar via de achter-slaapkamer en ingericht met een douche en wastafelmeubel.
ACHTERTUIN: De achtertuin is bereikbaar via de serre, keuken en achter-slaapkamer. Deze verzorgde en fraai aangelegde tuin is ingericht met terrassen, heeft een SCHUUR, een ACHTERUITGANG en staat borg voor fijne tuin- en zonmomenten van de ochtend- tot in de avonduren.
VVE: 2/14-de aandeel in de VvE met een actief onderhoudsbeleid. De maandelijkse VvE-bijdrage is EUR 60,00 (onder meer voor gemeenschappelijk onderhoud, opbouw reservefonds, verzekeringen).
EN VERDER: Bouwjaar 1934; erfpachtgrond gemeente 's-Gravenhage, de erfpachtcanon en beheerkosten zijn eeuwigdurend afgekocht. kozijnen met dubbele beglazing; in de NVM-koopakte worden de ouderdoms-, funderings- en milieuclausules opgenomen; oplevering in overleg.
AANKOOPMAKELAAR Interesse in dit huis? Schakel dan uw eigen NVM-aankoopmakelaar in.
Uw NVM-aankoopmakelaar komt op voor uw belang en bespaart u tijd, geld en zorgen.
Adressen van collega NVM-aankoopmakelaars in Haaglanden vindt u op Funda.
Woningaanbod
Vleerstraat 58 • verkocht • € 349500,-
Omschrijving
Informatie
Ligging
aan rustige weg, in woonwijk
Onderhoud buiten
redelijk
Oppervlakte
75 m2
Onderhoud binnen
redelijk
Inhoud
314 m3
Bijzonderheden
Perceeloppervlak
0 m2
Isolatie
dubbel glas
Bouwjaar
1934
Dak
pannen
Ik heb interesse!
Wilt u een afspraak maken voor een bezichtiging, of wilt u meer informatie over deze aanbod? Neem dan direct contact met ons op! Vul het formulier in of neem telefonisch contact met ons op, zodat wij u direct kunnen helpen (* = verplicht!).

























