Goed onderhouden en praktisch ingedeelde benedenwoning met twee slaapkamers en een achtertuin. Gunstig gelegen t.o.v. winkels, scholen en openbaar vervoer. Noordzeestrand op ongeveer 10 fietsminuten afstand. De Haagse binnenstad en Centraal Station zijn met tram 3 in binnen 15 minuten bereikbaar. De woning kan zonder al te veel kosten worden betrokken.
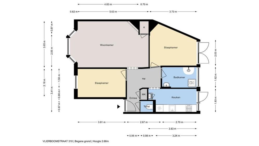
Indeling van het door ons aangeboden parterre-appartement:
Entree via open portiek, voordeur woning, L-vormige gang met vaste (meter)kast en toegang tot de wc-ruimte.
AAN STRAATZIJDE De woonkamer met sfeervolle erker en een ruime vaste kast, alsmede een slaap-/werkkamer.
AAN TUINZIJDE De hoofdslaapkamer met openslaande deuren naar de tuin. De tussenliggende, modern ingerichte badkamer met een douchecabine, een vaste wastafel in meubel, een handdoekradiator en de opstelplaats voor de wasmachine. De keukenruimte heeft een eigentijds keukenblok voorzien van diverse inbouwapparaten en ook de opstelplaats voor de Cv-ketel.
VLOERDECORATIE De woning is, met uitzondering van de sanitaire gedeelten, voorzien van een fraaie visgraat parketvloer.
ACHTERTUIN De tuin ligt op het zuidoosten en heeft een ruime schuur.
Bijzonderheden:
- gelegen op erfpachtgrond, eeuwigdurend uitgegeven met een jaarlijkse canon van € 233,76 per jaar, excl. beheerkosten;
- woonoppervlakte circa 62m2;
- VvE is actief, bijdrage €150,- per maand;
- kan zonder opknapkosten worden betrokken;
- ouderdom-, materialen en milieuclausules in NVM-koopakte;
- niet-bewonersclausule van toepassing;
- oplevering kan snel.
Woningaanbod
Vlierboomstraat 310 • verkocht • € 325000,-
Omschrijving
Informatie
Ligging
aan rustige weg, in woonwijk
Onderhoud buiten
goed
Oppervlakte
62 m2
Onderhoud binnen
goed
Inhoud
232 m3
Bijzonderheden
gedeeltelijk gestoffeerd
Perceeloppervlak
0 m2
Isolatie
dubbel glas
Bouwjaar
1929
Dak
bitumineuze dakbedekking
Ik heb interesse!
Wilt u een afspraak maken voor een bezichtiging, of wilt u meer informatie over deze aanbod? Neem dan direct contact met ons op! Vul het formulier in of neem telefonisch contact met ons op, zodat wij u direct kunnen helpen (* = verplicht!).





























