Verrassende eerste etagewoning aan de recent heringerichte Wagenstraat. Centraler wonen kan bijna niet. Alle grootstedelijke voorzieningen binnen handbereik. In de Stationsbuurt zien we de typische stedelijke dynamiek die ontstaat door de komst van ondernemers en menging van mensen met verschillende achtergronden. Er is verkeer en bedrijvigheid. De Stationsweg en het Huygenspark zijn daarin treffend.
Indeling van het door ons aangeboden appartement:
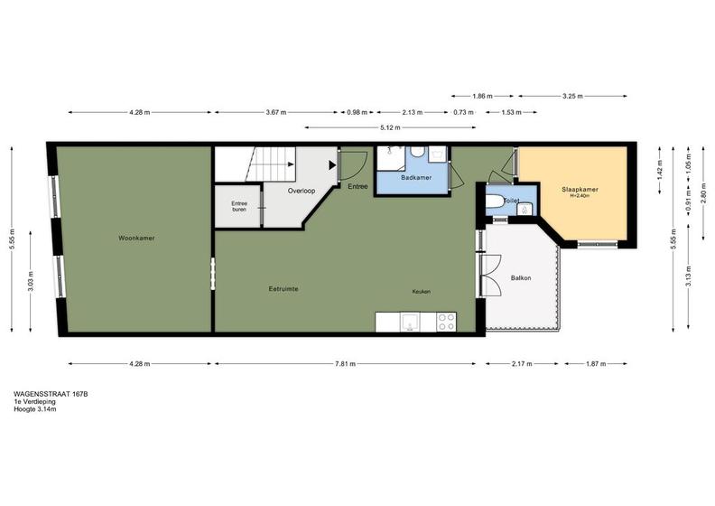
Entree via gemeenschappelijke hal en trappenhuis naar overloop op de eerste etage.
Voordeur woning, kleine hal met doorloop naar ZIT-/EETKAMER met open keuken en openslaande deuren naar het BALKON (zuidwesten).
Aan de voorzijde van het pand een grote woon-/SLAAPKAMER met zicht op de bedrijvigheid in de (vernieuwde) Wagenstraat.
Aan de achterzijde is een kleine uitbouw met een wc-ruimte met de opstelplaats cv-ketel (2020) en een SLAAPKAMER 2. Tussengelegen badkamer met douche, vaste wastafel en opstelplaats wasmachine.
Bijzonderheden:
- Gelegen op eigen grond;
- Rijks Beschermd Stadsgezicht Centrum;
- VvE met een bijdrage van € 100,- per maand;
- Gebruiksoppervlakte circa 71m2;
- ouderdoms-, materialen-, funderings- en milieu-clausules in NVM koopakte;
- oplevering kan snel.
Woningaanbod
Wagenstraat 167 B • verkocht • € 275000,-
Omschrijving
Informatie
Ligging
in centrum
Onderhoud buiten
redelijk tot goed
Oppervlakte
71 m2
Onderhoud binnen
redelijk
Inhoud
269 m3
Bijzonderheden
beschermd stads of dorpsgezicht
Perceeloppervlak
0 m2
Isolatie
Bouwjaar
1894
Dak
pannen, bitumineuze dakbedekking
Ik heb interesse!
Wilt u een afspraak maken voor een bezichtiging, of wilt u meer informatie over deze aanbod? Neem dan direct contact met ons op! Vul het formulier in of neem telefonisch contact met ons op, zodat wij u direct kunnen helpen (* = verplicht!).























