Wie wordt eigenaar van dit super leuke appartement? Wij bieden aan een compleet gerenoveerde tweekamerwoning op de derde verdieping met een (zonnig) balkon op het zuidwesten en een berging in de onderbouw. Het aan de rand van de Haagse binnenstad gelegen appartementencomplex is van 1972. For English see below and Funda English.
LOCATIE: in het ZEEHELDENKWARTIER, tussen de Vondelstraat en de Veenkade. Op enkele minuten loopafstand van onder meer de Paleistuin, het Vredespaleis, de terrassen aan de Veenkade, het Anna Paulownaplein, het Prins Hendrikplein, alsmede de winkel- en restaurantrijke Piet Heinstraat, Prinsestraat en het Noordeinde. De fietsafstand tot Den Haag CS en HS is circa 10 minuten. Openbaar vervoer voor de deur, de CentrumRing en uitvalswegen zijn eenvoudig bereikbaar.
ENTREE: hoofdentree via gesloten hal met brievenbussen- en bellentableau, trappenhuis naar woonlaag, gaanderij naar eigen voordeur. Vanaf deze plek een fantastisch uitzicht op onder meer panden in het Zeeheldenkwartier en de Haagse binnenstad.
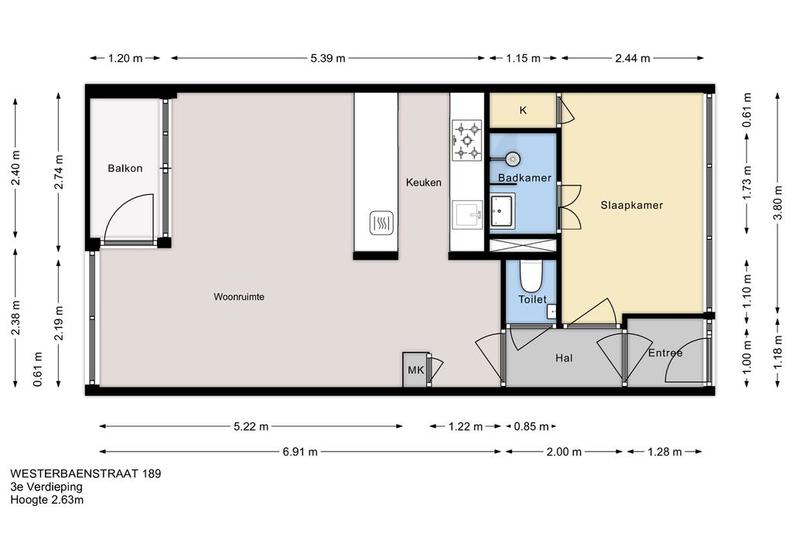
INDELING FLAT Voordeur woning, tochtportaal, beknopte hal met een modern betegelde wc-ruimte met wandcloset en fontein en (meter)kast met de zeer uitgebreide elektrische installatie en doorloop naar de woonkamer.
Sfeervolle en opvallend lichte ZIT-/EETKAMER met een OPEN KEUKEN en toegang tot het voorbalkon op het zuidwesten. De woonkamer en het balkon vangen volop de middagzon.
De keuken is fraai ingericht met een (Siemens inbouw-)vaatwasser, oven, 5-pits inductiekookplaat, wasmachineaansluiting en een elegant werkblad.
De aan de achterzijde van het complex liggende SLAAPKAMER (circa 385x248) heeft een diepe vaste kast en geeft toegang tot de eigentijds uitgevoerde DOUCHERUIMTE met designwastafel en handdoek-radiator.
VLOERDECORATIE: de gehele woning is voorzien van een mooie en praktische PVC-vloer.
In de onderbouw is een (fietsen)BERGING.
Binnen-onderhoud: uitstekend. De flat is recent gerenoveerd en kan zonder investeringen worden betrokken.
VERENIGING VAN EIGENAREN: 5/150-ste aandeel in de actieve VvE met een actief onderhoudsbeleid. VvE-bijdrage: EUR 147,00 (inclusief onder meer verzekeringen, voorziening groot onderhoud). Voorschot stookkosten: EUR 30,14 per maand.
VERDER: eigen grond, gemeentelijk Beschermd Stadsgezicht, afmetingen indicatief, in de NVM-koopakte worden ouderdoms-, funderings-, niet-bewoners- en milieuclausules opgenomen, oplevering per direct.
Interesse in dit huis? Schakel direct uw eigen NVM-aankoopmakelaar in.
Uw NVM-aankoopmakelaar komt op voor uw belang en bespaart u tijd, geld en zorgen.
Adressen van collega NVM-aankoopmakelaars in Haaglanden vindt u op Funda.
0-0-0
A lovely 1 bedroom apartment on the 3rd floor of a building located on the outskirts of Zeeheldenkwartier, a popular area in The Hague. With a living accommodation, including an open plan kitchen, a modern bathroom and a balcony. This recently renovated (2023), contemporary property is presented in excellent condition.
LOCATION The apartment is located only moments away from a wide array of shops and restaurants (Noordeinde, Piet Heinstraat), enormously popular public spaces such as Anna Paulownaplein, Veenkade, several hotels, museums and theaters, as well as the convenience of supermarkets.
ENTRANCE Entrance hall, staircase to 3rd floor, gallery, entrance to the flat.
LAY-OUT Entrance hall, hallway with toilet and meter cupboard. Living/dining room with an open-plan kitchen. A door open unto the southwest facing balcony which catches the afternoon sun. The contemporary kitchen is fitted with a (Siemens built-in)oven, dishwasher, induction cooker, ventilation hood and beautiful worktop. At the back of the building you will find the bedroom with a deep cupboard and access to the stylish bathroom with walk-in shower, radiator and sink.
In the basement: the property includes a storeroom.
Association of apartment owners: monthly contribution: EUR 147,00 (INCLUDING maintenance of the building, insurances). Advance payment for heating costs: Euro 30,14 per month.
Miscellaneous items: Freehold land; ‘beschermd stadsgezicht’, the dimensions given above are approximate, due to the year of construction the following clauses will be stipulated in the NVM-purchase deed: 'milieu-, ouderdoms-, funderings-, niet-bewoners-, and asbestclausules'.
Woningaanbod
Westerbaenstraat 189 • verkocht • € 265000,-
Omschrijving
Informatie
Ligging
aan rustige weg, in woonwijk
Onderhoud buiten
redelijk
Oppervlakte
49 m2
Onderhoud binnen
goed tot uitstekend, Het appartement werd recent gerenoveerd.
Inhoud
159 m3
Bijzonderheden
beschermd stads of dorpsgezicht
Perceeloppervlak
0 m2
Isolatie
gedeeltelijk dubbel glas
Bouwjaar
1972
Dak
bitumineuze dakbedekking
Ik heb interesse!
Wilt u een afspraak maken voor een bezichtiging, of wilt u meer informatie over deze aanbod? Neem dan direct contact met ons op! Vul het formulier in of neem telefonisch contact met ons op, zodat wij u direct kunnen helpen (* = verplicht!).





































