A beautiful one bedroom apartment located on one of Zeeheldenkwartier`s prime residential streets. We have on offer a nice lateral apartment on the 3rd (top)floor of a small apartment building (1952) on the edge of Zeeheldenkwartier and Willemspark (two popular areas in The Hague). It has been upgraded to a good and modern standard throughout. Start to live in the most sought after area of The Hague. Viewing is highly recommended. For English see Funda English.
Een bijzonder aantrekkelijk tweekamerappartement in het Mesdagkwartier! Dit sympathieke appartement is in een goede staat van onderhoud. Het gaat om een derde verdieping-woning met een woonkamer, een slaapkamer, een dichte keuken, een moderne badkamer, een balkon op het zuidwesten en een berging in de kap.
LOCATIE: de Zeestraat werd tussen 1663 en 1665 aangelegd en was ooit het begin van de verbindingsweg tussen ‘s-Gravenhage en het Noordzeestrand. Huisnummer 60 ligt schuin tegenover museum Panorama Mesdag, Hotel Carlton Ambassador en het Hilton Hotel. Een geweldige locatie op de grens Willemspark en Mesdag-/Zeeheldenkwartier. Op korte loopafstand van Plein 1813, het winkel-/restaurantrijke Noordeinde. Eveneens op korte loopafstand: de binnenstad, het Anna Paulownaplein, Piet Heinstraat, de Hoogstraat, het Lange Voorhout en openbaar vervoer. Diverse musea, theaters, bioscopen, parken op loop-/fietsafstand. Op fietsafstand van de NS-stations, de Haagse duinen en kust.
ENTREE
Gemeenschappelijk hoofdentree, gemeenschappelijke binnentrap en lift naar woonlaag.
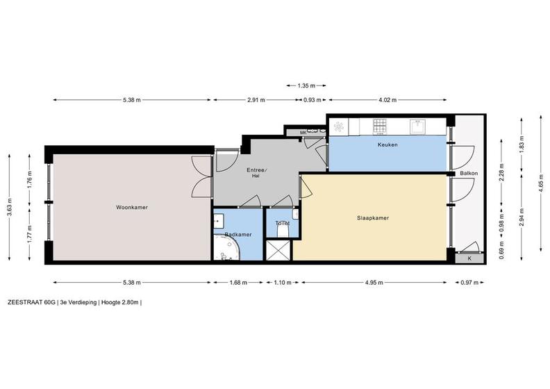
INDELING
Ruime hal met een vaste kast (met de elektrische installatie) en de moderne wc-ruimte met fontein. Twee prachtige deuren met glas-in-lood bieden toegang tot de ZIT-/EETKAMER. Deze sfeervolle woonkamer biedt uitzicht op de fraaie en historische panden aan de Zeestraat en Sophialaan.
De ruime SLAAPKAMER is aan de achterzijde. Een fijne en rustig gelegen kamer met een deur naar het balkon.
De KEUKENRUIMTE is ingericht met een moderne opstelling voorzien van een (inbouw-)koelkast, oven met gaskookplaat, wasmachine, vaatwasser en ventilatiekap. De opstelplaats voor de cv-ketel is in een keukenkast.
Tussenliggende, modern ingerichte BADKAMER met een douchecabine en wastafelmeubel.
VLOERDECORATIE De kamers en hal zijn gedecoreerd met een klassieke visgraatparketvloer.
BALKON Het balkon is woning-breed, ligt op het zuidwesten en biedt vrij uitzicht op de huizen aan de Bazarlaan en het Zeeheldenkwartier. Een ideale buitenruimte om te genieten van de middag- en avondzon.
BERGING Op de kapverdieping is een berging.
VVE Het aandeel in de VvE: 6/50. De maandelijkse bijdrage: EUR 179,52. De VvE is actief, heeft een actief onderhoudsbeleid en circa EUR 86000,00 in kas (31-12-2022).
VERDER: Eigen grond; Rijks Beschermd Stadsgezicht; in de NVM-koopakte worden gezien de bouwperiode ouderdoms-, materialen-, asbest-, (toekomstige) funderingsclausules opgenomen; eigendomsoverdracht in overleg (kan snel).
AANKOOPMAKELAAR Interesse in dit huis? Schakel dan uw eigen NVM-aankoopmakelaar in. Uw NVM-aankoopmakelaar komt op voor uw belang en bespaart u tijd, geld en zorgen. Adressen van collega NVM-aankoopmakelaars in Haaglanden vindt u op Funda.
Woningaanbod
Zeestraat 60 G • verkocht • € 349000,-
Omschrijving
Informatie
Ligging
in woonwijk, vrij uitzicht
Onderhoud buiten
goed
Oppervlakte
55 m2
Onderhoud binnen
goed
Inhoud
197 m3
Bijzonderheden
gestoffeerd, beschermd stads of dorpsgezicht, toegankelijk voor ouderen, toegankelijk voor minder validen
Perceeloppervlak
0 m2
Isolatie
Bouwjaar
1952
Dak
Ik heb interesse!
Wilt u een afspraak maken voor een bezichtiging, of wilt u meer informatie over deze aanbod? Neem dan direct contact met ons op! Vul het formulier in of neem telefonisch contact met ons op, zodat wij u direct kunnen helpen (* = verplicht!).























