A beautiful three bedroom apartment located on one of the City Centre`s prime residential streets.
We have on offer a nice apartment on the first and second floor. It has been upgraded to a good and modern standard throughout. Start to live in the most sought after areas of The Hague. Viewing is highly recommended.
LOCATION The apartment is excellently located only moments away from a wide array of shops and restaurants (Denneweg, Noordeinde, Piet Heinstraat), several hotels (Des Indes, Carlton Ambassador, Indigo, Hilton), museums and theaters, as well as the convenience of supermarkets. Excellent public transport options, including trams (1,10) and buses (22,24,28), provide direct access to International Organizations, Scheveningen, Railway Stations, and other key locations. Major highways are easily accessible.
LAY-OUT GROUND FLOOR Front door, vestibule with meter cupboard, spacious hallway (ideal for storage of bikes, a stroller).
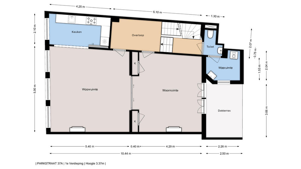
LAY-OUT SECOND FLOOR Landing, guest toilet with hand basin, a laundry/utility room with the washing machine connection. A small stair case, large landing.
At street side: A beautiful and very bright living/dining room (ceiling head: 3.37m) with three windows. This charming room lets in the afternoon sun. The semi-open kitchen has a practical L-shaped lay-out and incorporates fully fitted appliances and bespoke cabinetry. At the back the living room. Two pairs of French doors open unto to the balcony which catches the morning sun.
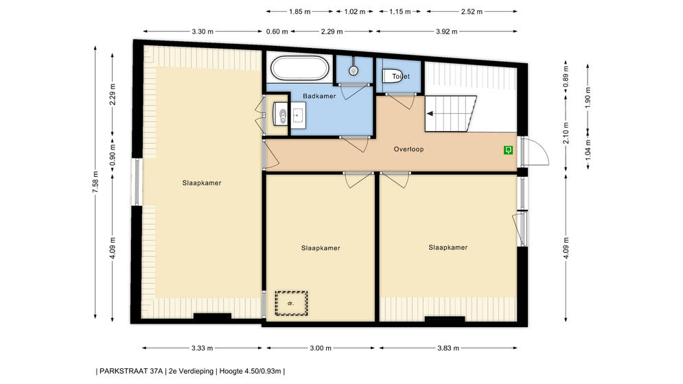
LAY-OUT BEDROOM FLOOR Landig with toilet and a door opens onto the balcony. At the front you will find the master bedroom (with a cupboard with the central heating boiler. At the back bedroom 2, and the in between bedroom 3. A modern bathroom with a bath, shower and vanity cabinet.
MISCELLANEOUS ITEMS:
- Available immediately
- Available for a minimum of 12 months
- Rental price excludes the costs of utilities, TV, and internet
- Deposit: an amount equivalent to two month' rent.
- Not suitable for pets
- Not suitable for sharing
Huurwoningen
Parkstraat 37 A • beschikbaar • € 2975,-
Omschrijving
Informatie
Ligging
Onderhoud buiten
goed
Oppervlakte
165 m2
Onderhoud binnen
goed
Inhoud
651 m3
Bijzonderheden
beschermd stads of dorpsgezicht
Perceeloppervlak
0 m2
Isolatie
dubbel glas, voorzetramen
Bouwjaar
1831
Dak
Ik heb interesse!
Wilt u een afspraak maken voor een bezichtiging, of wilt u meer informatie over deze aanbod? Neem dan direct contact met ons op! Vul het formulier in of neem telefonisch contact met ons op, zodat wij u direct kunnen helpen (* = verplicht!).















































