Wat een prachtige, rustige locatie! Aan een autoluw pleintje in het Belgisch Park bieden wij aan: een -te RENOVEREN- hoekherenhuis met een voor-, zij- en achtertuin, alsmede een garage. Dit gezinshuis is decennia lang in bezit van de familie en verdient een koper die het pand verduurzaamt en compleet renoveert met oog voor en behoud van stijlelementen uit de bouwperiode. Wordt u eigenaar/bewoner van dit bijzondere huis?
LOCATIE Huisnummer 199 ligt aan een plantsoen, tussen de Doorniksestraat en de Stevinstraat. Een kindvriendelijke woonomgeving met diverse scholen en sportfaciliteiten op korte loop-/fietsafstand. De Stevinstraat en Gentsestraat zijn winkelstraten met lokale ondernemers. De Oostduinen, het Oostduinpark, het Noordzeestrand, Scheveningen Badplaats zijn eveneens op loop-/fietsafstand. Via de Van Alkemadelaan zijn de S200, S101, N14 en het Rijkswegennet goed te bereiken.
INDELING
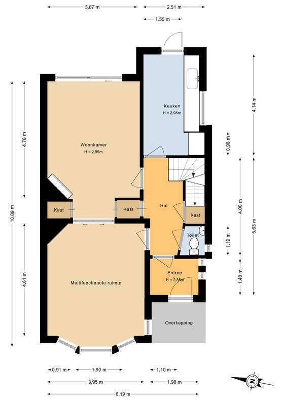
BEGANE GROND
Fraaie voordeur, vestibule met twee zijramen, vestibuledeur, binnenhal met de wc-ruimte, een vaste kast en de kelderdeur. De hal vangt goed licht via de ramen in het trappenhuis. Twee woonkamers en suite met een kastenseparatie met schuifdeuren: de voorkamer biedt zicht op de zij-/voortuin en het plantsoen, de achterkamer heeft openslaande deuren naar de achtertuin. Aan de achterzijde is de keukenruimte met een deur naar de achtertuin.
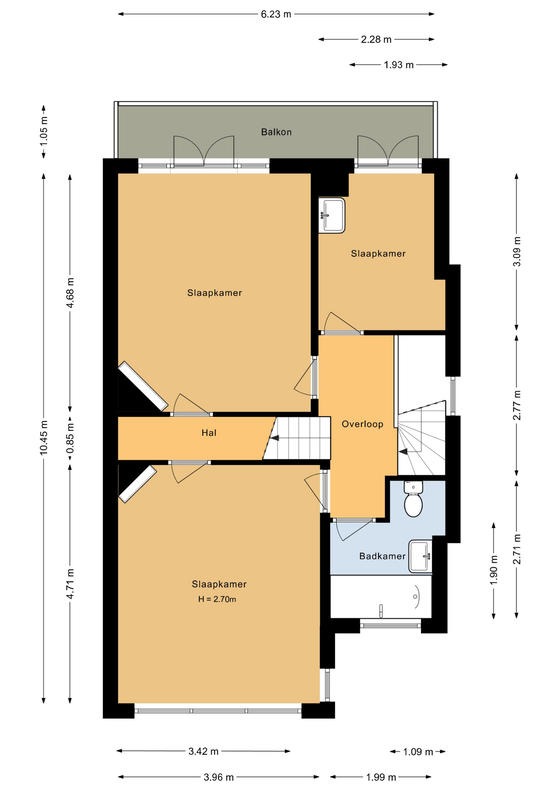
EERSTE VERDIEPING
Lichte overloop. Aan de voorzijde slaapkamer 1, een mooie kamer met vrij uitzicht op het plantsoen/plein. Aan de achterzijde slaapkamer 2 en 3. Beide kamers hebben openslaande deuren naar het woning-brede balkon. De gedateerde badkamer ligt aan de voorzijde.
TWEEDE VERDIEPING
Overloop met toegang tot de andere drie slaapvertrekken.
KELDER
De kelder is bereikbaar via de binnenhal.
GARAGE
Achterin de tuin is de garage. De genoteerde afmetingen zijn indicatief.
TUIN
Het gaat om een groot perceel (286m2). De woning heeft aan drie zijden tuin. De voortuin ligt op het westen, de zij-tuin op het zuiden, de achtertuin op oosten.
VERDER Bouwjaar 1931, de woning staat op erfpachtgrond van de Gemeente ’s-Gravenhage, de canon en de beheerkosten zijn eeuwigdurend afgekocht; Rijks Beschermd Stadgezicht Westbroekpark/BP, in de NVM-koopakte wordt de niet-bewonersclausule en worden gezien het bouwjaar ouderdoms-, (toekomstige)funderings- en (toekomstige)milieuclausules opgenomen; oplevering in overleg.
Woningaanbod
Gentsestraat 199 • verkocht onder voorbehoud • € 1050000,-
Omschrijving
Informatie
Ligging
aan rustige weg, in woonwijk, vrij uitzicht
Onderhoud buiten
matig tot redelijk
Oppervlakte
161 m2
Onderhoud binnen
slecht tot matig
Inhoud
660 m3
Bijzonderheden
beschermd stads of dorpsgezicht
Perceeloppervlak
286 m2
Isolatie
Bouwjaar
1931
Dak
pannen
Ik heb interesse!
Wilt u een afspraak maken voor een bezichtiging, of wilt u meer informatie over deze aanbod? Neem dan direct contact met ons op! Vul het formulier in of neem telefonisch contact met ons op, zodat wij u direct kunnen helpen (* = verplicht!).
























































