Zeer ruim (198m2), licht en goed onderhouden herenhuis met grote achtertuin. Gelegen midden in de populaire Bomenbuurt met alle stedelijke voorzieningen binnen handbereik. Zonder opknapkosten te betrekken.
Aan brede en groene laan gelegen 8-kamer herenhuis in zeer goede staat van onderhoud. Uitstekende ligging ten opzichte van openbaar vervoer en uitvalswegen. Winkels (Fahrenheitstraat, Reinkenstraat, Frederik Hendrikstraat) en (internationale)scholen op korte (loop-)afstand. Het centrum van Den Haag en het Noordzeestrand liggen op slechts 10 fietsminuten afstand.
Indeling van het door ons aangeboden herenhuis:
BEGANE GROND Entree via beknopte voortuin, vestibule en gang met authentieke granito vloer. Vanuit de gang toegang tot een ruime bergkast en de wc met fontein. Ruime ZITKAMER met open haard, houten vloerdelen en twee vaste kasten, schuifdeuren met glas-in-lood ramen naar de EETKAMER met twee vaste kasten, houten vloerdelen en openslaande deuren naar de achtertuin. De keukenruimte is in half open verbinding met de eetkamer en is ingericht met een eigentijdse keukenopstelling met inbouwapparatuur (keuken vernieuwd in 2021) en een deur naar de tuin.
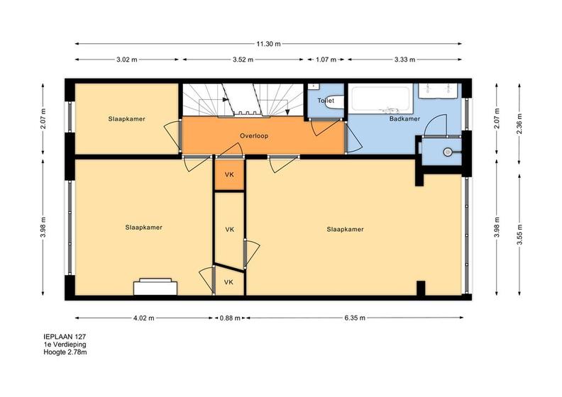
EERSTE VERDIEPING Overloop met vaste kast en wc met fontein. Aan de voorzijde: SLAAPKAMER 1 met een vaste kast en SLAAPKAMER 2 zonder vaste kast. Aan tuinzijde: ruime SLAAPKAMER 3 met een grote vaste kast. Fraaie BADKAMER met ligbad, twee wastafels in meubel, vloerverwarming en inloopdouche.
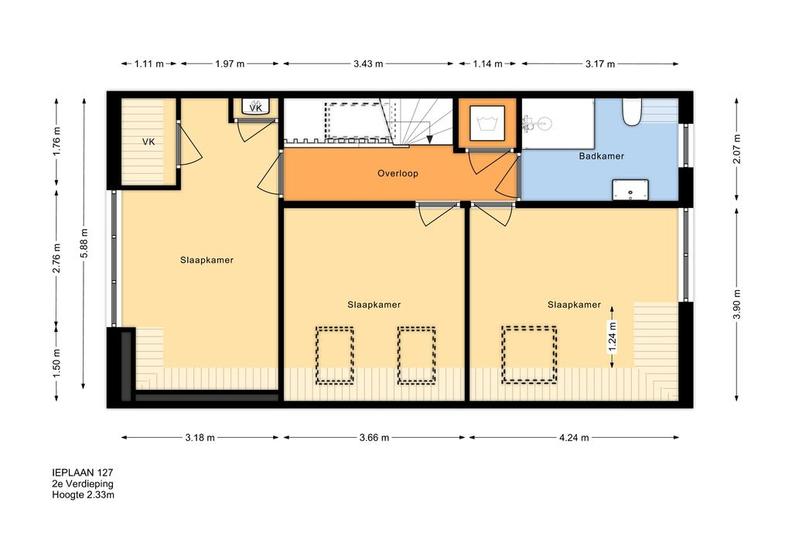
TWEEDE VERDIEPING Overloop met vaste kast voorzien van de wasmachineaansluiting. Aan de voorzijde een woning-brede SLAAPKAMER 4 met een vaste kast, tussen-SLAAPKAMER 5 met twee zijramen en ventilerend dakraam en aan de tuinzijde SLAAPKAMER 6. BADKAMER 2 met inloopdouche, wc, vloerverwarming en vaste wastafel.
ACHTERTUIN Heerlijke tuin met diverse zitjes, een onderhoudsvrije grasmat en een grote schuur.
Bijzonderheden:
- gelegen op eigen grond;
- circa 198 m2 gebruiksoppervlakte;
- zonder opknapkosten te betrekken;
- keuken, cv ketel en tuinaanleg uit 2021;
- twee luxe badkamers, beide met vloerverwarming;
- gunstige ligging t.o.v. (internationale) scholen;
- voorzien van dubbel glas;
- ouderdom-, funderings- en materialenclausules in NVM koopakte;
- oplevering in overleg.
Woningaanbod
Ieplaan 127 • verkocht • € 935000,-
Omschrijving
Informatie
Ligging
in woonwijk
Onderhoud buiten
goed tot uitstekend
Oppervlakte
198 m2
Onderhoud binnen
goed tot uitstekend
Inhoud
625 m3
Bijzonderheden
gedeeltelijk gestoffeerd
Perceeloppervlak
153 m2
Isolatie
dubbel glas
Bouwjaar
1924
Dak
pannen, bitumineuze dakbedekking
Ik heb interesse!
Wilt u een afspraak maken voor een bezichtiging, of wilt u meer informatie over deze aanbod? Neem dan direct contact met ons op! Vul het formulier in of neem telefonisch contact met ons op, zodat wij u direct kunnen helpen (* = verplicht!).




















































