In een rustige straat van de geliefde Vruchtenbuurt ligt deze charmante eengezinswoning (1929), met een voortuin (zuidoosten), een zonnige achtertuin (noordwesten) en een eigen GARAGE. Een huis met karakter, ruimte en potentie (ideaal voor wie op zoek is naar een fijne huis dat nog naar eigen inzicht kan worden gemoderniseerd en verduurzaamd. Het huis en de garage liggen op EIGEN GROND.
De woning beschikt over drie volwaardige slaapkamers en een royale zolderkamer met dakkapel en dakraam ( perfect als extra slaapkamer, werkruimte of speelkamer). De voorzieningen zijn functioneel, maar gedateerd, wat juist kansen biedt om het geheel naar eigen smaak te vernieuwen.
LOCATIE De buurt staat bekend om haar (kind)vriendelijke sfeer, goede scholen, lokale winkels, winkelcentrum de Savornin Lohmanplein, zwembad de Waterthor en openbaar vervoer (tramlijn 3 en 2, buslijn 21 en 23) op (korte) loopafstand. Het strand en de duinen zijn op korte fietsafstand bereikbaar.
Indeling
VOORTUIN De voortuin (zuidoosten) is circa 3.80 diep en vangt de ochtend- en middagzon.
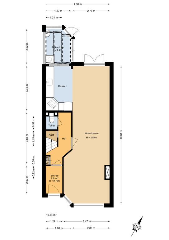
BEGANE GROND Voordeur, vestibule, vestibuledeur, gang met meterkast en de wc-ruimte. Een doorgebroken zit-/eetkamer met openslaande deuren naar de achtertuin. De keukenruimte is in open verbinding met woonkamer en is ingericht met een L-vormige keukenopstelling. Achter de keukenruimte is een serre-achtige bijkeuken met de wasmachineaansluiting en een uitstortgootsteen.
EERSTE VERDIEPING Overloop. Twee slaapkamers met vaste kast(en) aan de voorzijde. De hoofdslaapkamer is aan de achterzijde. De badkamer biedt toegang het balkon en is voorzien van een wc, wastafel, designradiator en douche. Het balkon ligt op het noordwesten.
KAPVERDIEPING Een zeer royale slaapkamer met aan de voorzijde een dakkapel. Deze verdieping zou kunnen worden heringericht met bijvoorbeeld een overloop, slaapkamer, bergruimte en de opstelplaats voor de wasmachine en de Cv-ketel.
ISOLATIE Het dak is geďsoleerd (1998) en een groot gedeelte van de woning heeft vloerisolatie.
ACHTERTUIN De achtertuin ligt op het noordwesten, vangt de middag- en avondzon en biedt veel privacy. Via de tuin is de garage bereikbaar.
GARAGE De garage ligt aan Morelstraat 56. Een ideale ruimte voor de stalling uw automobiel, uw (bak)fietsen en opslag. Via de garage is de achtertuin van Meloenstraat 19 toegankelijk.
DIVERSEN Bouwjaar 1929; liggende op eigen grond; ouderdom-, materialen-,- (toekomstige) funderingsclausules worden in de NVM-koopovereenkomst opgenomen; oplevering in overleg.
Woningaanbod
Meloenstraat 19 • verkocht • € 695000,-
Omschrijving
Informatie
Ligging
aan rustige weg, in woonwijk
Onderhoud buiten
redelijk tot goed
Oppervlakte
126 m2
Onderhoud binnen
redelijk tot goed
Inhoud
435 m3
Bijzonderheden
gedeeltelijk gestoffeerd
Perceeloppervlak
130 m2
Isolatie
dakisolatie, gedeeltelijk dubbel glas
Bouwjaar
1929
Dak
pannen
Ik heb interesse!
Wilt u een afspraak maken voor een bezichtiging, of wilt u meer informatie over deze aanbod? Neem dan direct contact met ons op! Vul het formulier in of neem telefonisch contact met ons op, zodat wij u direct kunnen helpen (* = verplicht!).




































