EINDELIJK staat er weer eens een fier herenhuis (1903) te koop in de straat die bekend staat als de parel van het Regentessekwartier. Door de uiterst lage verhuisfrequentie is het zelfs met de door George Stephenson uitgevonden mijnlamp een behoorlijke klus om hier een sfeervol en goed onderhouden huis te vinden. Huisnummer 84 is in goede staat, heeft een royale zit/-eetkamer met mooie lichtinval, zes/zeven slaapvertrekken, een kelder, alsmede een tuin, terras en een balkon op het zuidoosten. Kortom, circa 218 m2 woongemak in een prima sfeer!
Stijldetails: mooie elementen als glas-in-lood, paneeldeuren, schoorsteenmantels, geornamenteerde plafonds en de kastenseparaties zijn bewaard gebleven.
Indeling:
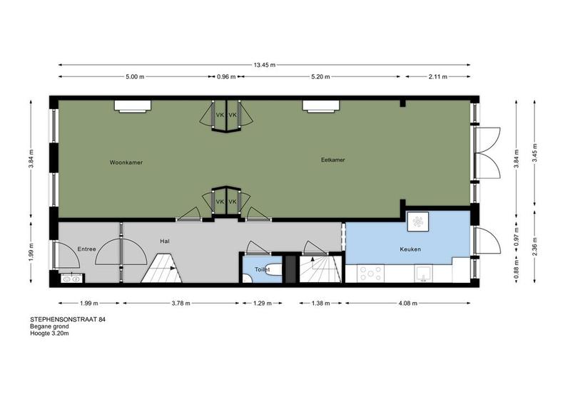
BEGANE GROND: entree, vestibule met geëtst glas in tochtdeur, gang met marmeren vloer, ruim toilet en toegang tot de kelder.
Royale woon-/eetkamer (circa 1345x384/gedeeltelijk 345) met visgraat parketvloer, kastenseparatie en openslaande deuren naar de achtertuin. Moderne keuken met diverse inbouwapparatuur. Plafondhoogte: 3.20 meter.
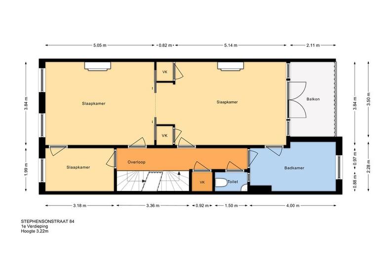
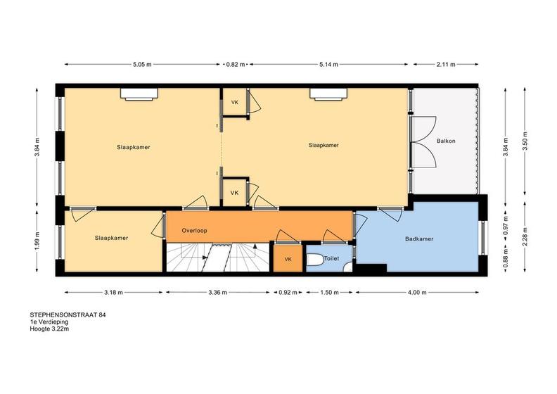
TWEEDE WOONLAAG: overloop met tweede toilet en vaste kast. Voorkamer (circa 505x384) en suite met de achterkamer (circa 596x384). Deze kamer heeft openslaande deuren naar het terras (circa 210x350) op zuidoosten; de vloer is voorzien van een hardhouten lamelparket. Een voorzijkamer en een achterzijkamer (nog in te richten als extra badkamer). Plafondhoogte: 3.22 meter.
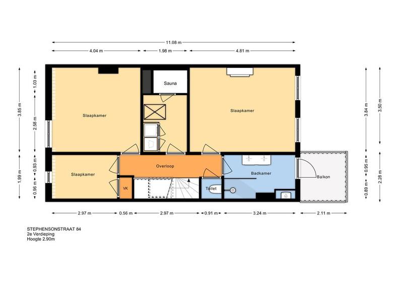
DERDE WOONLAAG: overloop met derde toilet, voorkamer (circa 385x405), achterkamer (circa 481x385), voorzijkamer (circa 280 x 200) en een badkamer met inloopdouche, vaste wastafel en opstelplaats cv-ketel en toegang tot het tweede balkon. Tussenliggende wasruimte met toegang tot de sauna. Plafondhoogte 2.90 meter.
KELDER: praktische kelder (circa 5.85 x 2.30). Plafondhoogte 1.80 meter.
TUIN: de fraai aangelegde tuin is circa 11 meter diep, ligt op het zuidoosten en is, bij het juiste weer, zeer zonnig. Houten schuur achter in de tuin.
Het weten waard:
- gemeentelijk beschermd stadsgezicht;
- woonoppervlakte circa 218 m2;
- elektriciteitsinstallatie met aardlekschakelaar;
- materialen-, ouderdoms- en milieuclausules in NVM-koopakte;
- notariskeuze: Notariaat Statenhaghe
- oplevering in overleg.
Woningaanbod
Stephensonstraat 84 • verkocht • € 995000,-
Omschrijving
Informatie
Ligging
Onderhoud buiten
goed
Oppervlakte
218 m2
Onderhoud binnen
goed
Inhoud
851 m3
Bijzonderheden
beschermd stads of dorpsgezicht
Perceeloppervlak
155 m2
Isolatie
Bouwjaar
1903
Dak
bitumineuze dakbedekking
Ik heb interesse!
Wilt u een afspraak maken voor een bezichtiging, of wilt u meer informatie over deze aanbod? Neem dan direct contact met ons op! Vul het formulier in of neem telefonisch contact met ons op, zodat wij u direct kunnen helpen (* = verplicht!).












































