Dit is een prachtig, praktisch en goed onderhouden herenhuis (1880) in het aantrekkelijke Zeeheldenkwartier. Circa 225m2 woonoppervlakte verdeeld over vier woonlagen met mooie kamers en suite, twee keukenopstellingen, vier slaapvertrekken, twee badkamers, een balkon, een achtertuin (NO) en een inpandige GARAGE (circa 25m2). Het huis werd in 2020 professioneel vergroot, verduurzaamd en heringericht. Kortom, compleet gerenoveerd. Hierbij werden een aantal details uit de bouwperiode en de jaren ’50 elementen bewaard. Een ideaal pand om wonen, werken en comfortabel parkeren te combineren.
LOCATIE Huisnummer 31 ligt tussen de winkel- en horecarijke Piet Heinstraat en de Prins Hendrikstraat, in de geliefde woonwijk Zeeheldenkwartier. Een dynamische wijk van rond de voorlaatste eeuwwisseling. Nabij het terras- en restaurantrijke Anna Paulownaplein, Prins Hendrikplein, Piet Heinplein. En niet ver van de Paleistuin, het Vredespaleis, de binnenstad en openbaar vervoer. Op fietsafstand van de NS-stations, de Haagse duinen en het Noordzeestrand.
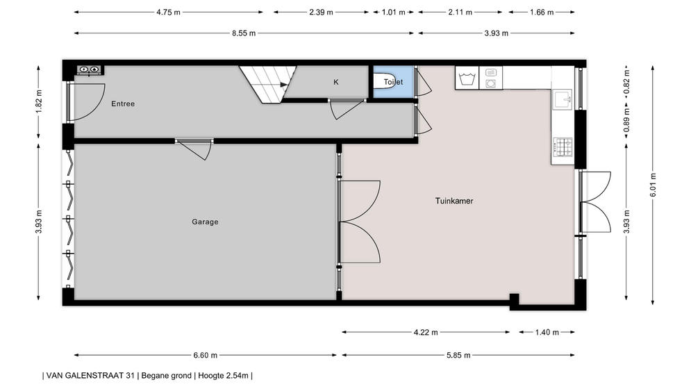
ENTREE GARAGE Handbediende zijwaarts schuivende deur.
ENTREE WONING Een degelijke (replica) voordeur.
INDELING BEGANE GROND Entreegang met de meterkast voorzien van een zeer uitgebreide installatie, een trap-/garderobekast, een wc-ruimte met fontein, een deur naar de garage en een deur naar de L-vormige tuinkamer. Deze praktische ruimte is ingericht met een toilet, een open keuken, een stalen separatie met openslaande deuren naar de garage en openslaande deuren naar de achtertuin. De L-vormige keukenopstelling heeft een (inbouw-)vaatwasser, koelkast met vriesvakje, oven, gaskookplaat, een Quooker en de opstelplaats wasmachine en -droger.
EERSTE VERDIEPING Overloop met een wc-ruimte met fontein. Twee mooie kamers en suite met een kastenseparatie met glas-in-loodschuifdeuren. Aan straatzijde een woning-brede zitmaker met bijzondere details uit de jaren ’50 (schoorsteenmantel, kozijnbankje). De L-vormige achterkamer is ingericht als een woonkeuken. De U-vormige keukenopstelling heeft een prettige werkhoogte en hoogwaardige inbouwapparatuur: grote ijskast, grote vriezer, een Siemens Studio Line hete lucht/stoom oven en combimagnetron, een Quooker, een Siemens vaatwasser en een Siemens Studio Line vijfpits-elektrische kookplaat met downdraft afzuigkap. Het werkblad, evenals van de wandkast, is van natuursteen.
TWEEDE VERDIEPING Overloop met een bijzonder kastje. Aan straatzijde de woning-brede slaapkamer 1 met een schoorsteenmantel. Aan de achterzijde: de badkamer en slaapkamer 2 met een kastenwand en openslaande deuren naar het balkon op het noordoosten. De eigentijds ingerichte badkamer heeft een ligbad, inloopdouche, wc, een wastafelmeubel met spiegelkast en een elektrisch bedienbare ventilerende lichtkoepel met regencensor. De twee slaapkamers zijn met elkaar verbonden met een handige doorloop met een trapkast.
DERDE VERDIEPING Opvallend lichte overloop met twee Velux dakramen, bergruimte en de kast met de opstelplaats voor de cv-ketel en de unit mechanische ventilatie. Aan straatzijde een charmante slaapkamer met dakkapel. Aan de achterzijde slaapkamer 4 met twee vaste kasten en een dakkapel. De tussenliggende badkamer heeft een grote inloopdouche, een wc, een meubel met wastafel, een spiegelkastje en een lichtkoepel.
TUIN De 11 meter diepe achtertuin is bereikbaar via de tuinkamer of de hardhouten buitentrap vanaf de eerste verdieping. De mooi aangelegde tuin (met ruim terras) vangt de ochtend- en middagzon.
GARAGE Een uniek pluspunt van het pand is de inpandige garage (660x393). Ideaal voor het parkeren van uw auto of om (deels) te gebruiken als opslagruimte. Een elektrische voorziening voor een autolaadpunt is geďnstalleerd. De garage en de tuinkamer worden gescheiden door -een met glas voorziene- stalen separatie met dubbele deuren.
VERDUURZAMING Het pand werd tijdens de verbouw goed geďsoleerd: (gedeeltelijk) vloer-, (gedeeltelijk)gevel- en zolderisolatie, houten kozijnen met dubbel glas, vloerverwarming (entreegang, eetkeuken, badkamers).
VERDER Eigen grond; bouwjaar 1880, Gemeentelijk Beschermd Stadsgezicht Zeeheldenkwartier; in de NVM-koopakte worden gezien het bouwjaar ouderdoms-, materialen-, (toekomstige)funderings- en (toekomstige)milieuclausules opgenomen; oplevering: in overleg.
AANKOOPMAKELAAR Interesse in dit huis? Schakel dan uw eigen NVM-aankoopmakelaar in. Uw NVM-aankoopmakelaar komt op voor uw belang en bespaart u tijd, geld en zorgen. Adressen van collega NVM-aankoopmakelaars in Haaglanden vindt u op Funda.
Woningaanbod
Van Galenstraat 31 • verkocht • € 1295000,-
Omschrijving
Informatie
Ligging
aan rustige weg, in woonwijk
Onderhoud buiten
goed tot uitstekend
Oppervlakte
226 m2
Onderhoud binnen
goed tot uitstekend
Inhoud
868 m3
Bijzonderheden
gestoffeerd, beschermd stads of dorpsgezicht
Perceeloppervlak
151 m2
Isolatie
dubbel glas
Bouwjaar
1880
Dak
pannen
Ik heb interesse!
Wilt u een afspraak maken voor een bezichtiging, of wilt u meer informatie over deze aanbod? Neem dan direct contact met ons op! Vul het formulier in of neem telefonisch contact met ons op, zodat wij u direct kunnen helpen (* = verplicht!).































































