Aan de Haagse grachtengordel gelegen PAKHUIS uit 1898, ruim en spectaculair verbouwd tot een woonhuis met 2 balkons en dakterras. Zeer fraaie detaillering en afwerking. Geschikt voor werk of praktijk aan huis met kantoor, atelier of studio op de begane grond. Centraal gesitueerd in het centrum van Den Haag op loopafstand van grote treinstations en Ministeries. Uitstekende verbinding met Schiphol, Amsterdam, Rotterdam en Utrecht, zowel met openbaar vervoer als met de auto. Parkeren kan, uitzonderlijk voor de binnenstad, voor de deur. Huygenspark, Historische haven, Avenue culinaire, Chinatown en Oude centrum zijn binnen enkele wandelminuten bereikbaar. Evenals vele voorzieningen, musea, theaters en uitgaansgelegenheden.
INDELING BEGANE GROND:
Entree, vestibule met meterkast, stookruimte met Cv-ketel en een binnentrap naar eerste verdieping. Vanuit de vestibule tevens een deur naar een ruime werkruimte/garage/entreehal.
Deze ruimte (tevens toegankelijk vanaf de straat met twee openslaande, getoogde deuren) is geschikt voor het stallen van een voertuig; eventueel te transformeren naar een extra slaapkamer. Aan de achterzijde een zeer ruime slaapkamer met open badkamer met een ligbad, douche, vaste wastafel en opstelplaats voor wasmachine en -droger. Vanuit de slaapkamer een fraaie gietijzeren wenteltrap naar eerste verdieping.
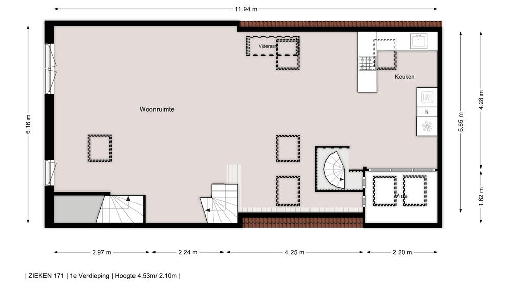
INDELING EERSTE VERDIEPING
Zeer grote en spectaculaire woon-/eetkamer (toegankelijk via trap achter voordeur en via de wenteltrap vanuit de slaapkamer) met een Frans balkon en een open keuken. Het Franse balkon biedt fraai uitzicht over de gracht en een maximum aan privacy. De luxe keukenopstelling is voorzien van diverse apparatuur en een eetbar. De vide aan de achterzijde en diverse dakramen zorgen voor lichtinval. Vloerdecoratie: houten vloerdelen.
INDELING TWEEDE VERDIEPING
Overloop. Slaapkamer met een deur naar een beknopt dakterras en badkamer 2 met douche, vaste wastafel, wc en deur naar een klein dakterras.
Het dak(terras) is bereikbaar via een buitentrap. Het biedt een geweldig uitzicht over rondom gelegen woonwijken, de Haagse binnenstad en een diversiteit aan bebouwing. Thans in gebruik als opstelplaats voor de zonnepanelen.
Bijzonderheden:
- gelegen op erfpachtgrond met eeuwigdurend afgekochte canon;
- woonoppervlakte circa 155 m2;
- Gemeentelijk Beschermd Stadsgezicht;
- Energielabel C
- isolerende beglazing;
- zonder kosten te betrekken;
- NVM koopakte met ouderdom-, materialen-, funderings- en milieuclausules;
- oplevering in overleg.
Woningaanbod
Zieken 171 • beschikbaar • € 695000,-
Omschrijving
Informatie
Ligging
aan water, in centrum, vrij uitzicht, aan vaarwater
Onderhoud buiten
goed tot uitstekend
Oppervlakte
155 m2
Onderhoud binnen
goed tot uitstekend
Inhoud
547 m3
Bijzonderheden
gedeeltelijk gestoffeerd, beschermd stads of dorpsgezicht
Perceeloppervlak
86 m2
Isolatie
dubbel glas
Bouwjaar
1898
Dak
pannen
Ik heb interesse!
Wilt u een afspraak maken voor een bezichtiging, of wilt u meer informatie over deze aanbod? Neem dan direct contact met ons op! Vul het formulier in of neem telefonisch contact met ons op, zodat wij u direct kunnen helpen (* = verplicht!).









































